EasyManua.ls Logo

Assa Abloy 8400 - Page 2

Assa Abloy 8400
2 pages
Print Icon
To Previous Page IconTo Previous Page
To Previous Page IconTo Previous Page
Loading...
80-0180-38, Revision H
Adams Rite is a brand associated with Hanchett Entry Systems, Inc., an
ASSA ABLOY Group company. Copyright © 2016, Hanchett Entry Systems, Inc.
All rights reserved. Reproduction in whole or in part without the express written
permission of Hanchett Entry Systems, Inc. is prohibited.
Separating Push Bar and Mounting Bar
1. REMOVE both end caps (retainer is attached to nose end cap).
2. SLIDE push bar toward hinge side of door.
3. CONTINUE to slide push bar past the pivot plate that rides in
push bar track.
4. SLIDE push bar in opposite direction, keeping pivot plate out of
track until push bar is free of mounting bar.
Installing Push Bar to Mounting Bar
1. With push bar in hand and mounting bar attached to door, FIND
the stop plate staked into push bar (plate is on the latch end of
the assembled unit).
2. SLIDE the pivot plate nearest the hinge into track of push bar
until second pivot plate is exposed.
3. INSERT pivot plate into track on push bar and SLIDE in
opposite direction until push bar and mounting bar align.
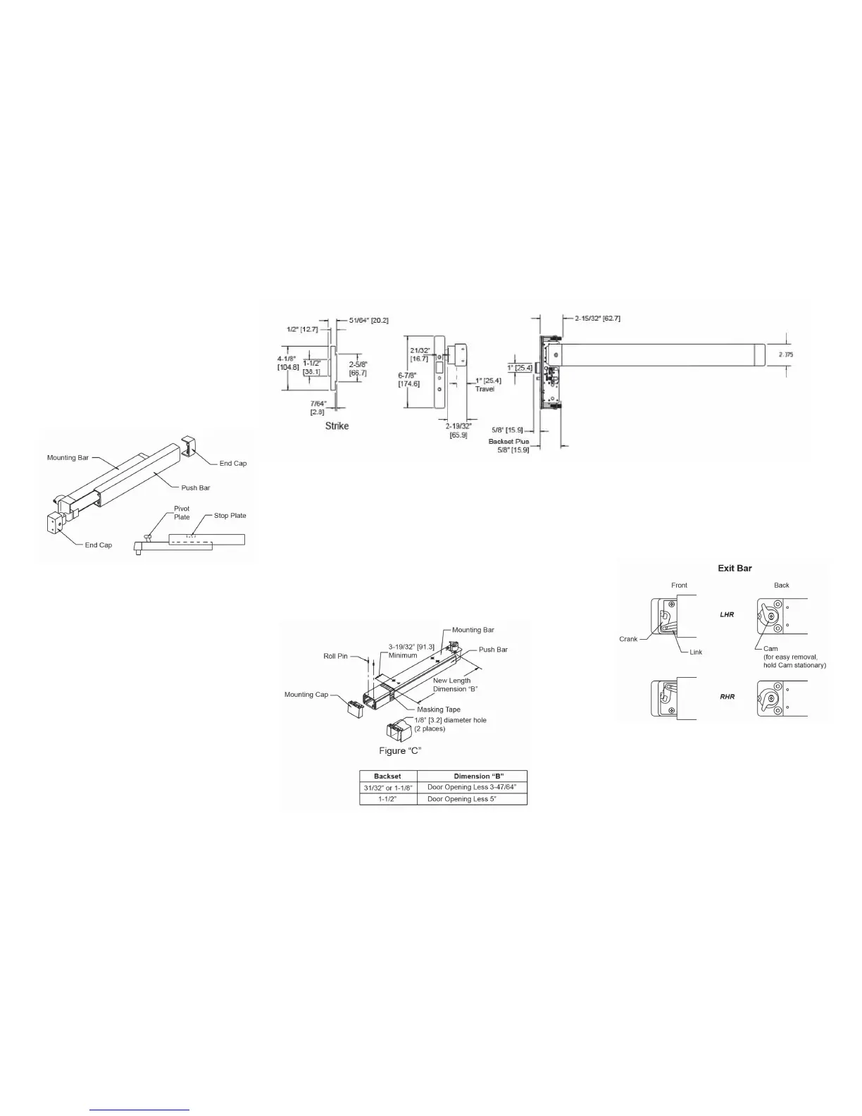
Cutting Off for Non-Standard Doors
1. DRIVE OUT the two roll pins.
2. REMOVE mounting cap.
3. COLLAPSE bar and TAPE DOWN in area of cut-off.
NOTE: 3-19/32” [91.3 mm] minimum dimension from rivet centerline to new cut-
off length, as show below.
4. DETERMINE extrusion length (Dimension “B”).
5. MEASURE mounting bar (not push bar), and MARK extrusion length on tape.
6. SAW off excess length.
7. LAY mounting clip over mounting bar (Figure “C”) and USE as a guide to drill
two 1/8” [3.2 mm] holes.
8. RE-INSTALL mounting cap into mounting bar and DRIVE two roll pins into
holes.
9. SEE installation instructions.
Changing Hand of Exit Device
1. REMOVE screws and then spring retainer plate.
2. REMOVE two springs.
3. REMOVE auxiliary bolt.
4. REMOVE latch bolt and deadlocking arm assembly, being careful
not to lose small internal spring.
5. REMOVE internal (deadlocking) spring.
6. SLIDE pin out of latch bolt and REMOVE deadlocking arm.
7. REPLACE deadlocking arm on opposite side of latch bolt and
INSTALL pin.
8. INSTALL internal spring and INSERT latch bolt and deadlocking arm
assembly into latch case.
9. INSTALL auxiliary bolt.
10. REPLACE two springs.
11. INSTALL spring retainer plate.
Front View
1. REMOVE link from crank arm.
2. ROTATE crank to opposite
direction.
3. CONTINUE moving crank arm as
as bar is released.
Back View
1. REMOVE Cam screw.
2. FLIP Cam over to opposite
position.
3. REPLACE Cam screw and
TORQUE to 6.57.0 inch pounds.
IMPORTANT NOTE
Installation must be in accordance to all applicable building and life safety codes.

Related product manuals