EasyManua.ls Logo

Atlantic Panama A - Installation: System Draining; Drain Air and Water from the System

Atlantic Panama A
Print Icon
To Next Page IconTo Next Page
To Next Page IconTo Next Page
To Previous Page IconTo Previous Page
To Previous Page IconTo Previous Page
Loading...
10
The pipe length shall not exceed the values specified in the heat pump or boilers manual.
Condensed water from the heat exchanger must be evacuated by a flexible plastic hose with an inside diameter
of 16mm. The drainage system can be separate for each unit or connected to a main drain pipe.
Sufficient slope is necessary to facilitate condensate drainage. It is recommended to plan for a siphon if the
condensate drainage pipe is connected to a sewage disposal or any other line that can release unpleasant
smells.
Connecting the device to the water circuit.
The water connection must be in accordance with the diagrams of your heat pump or your boiler manual.
According to the configuration, make sure the water volume in the system complies with the generator
requirements by reading the heat pump or the boiler manual.
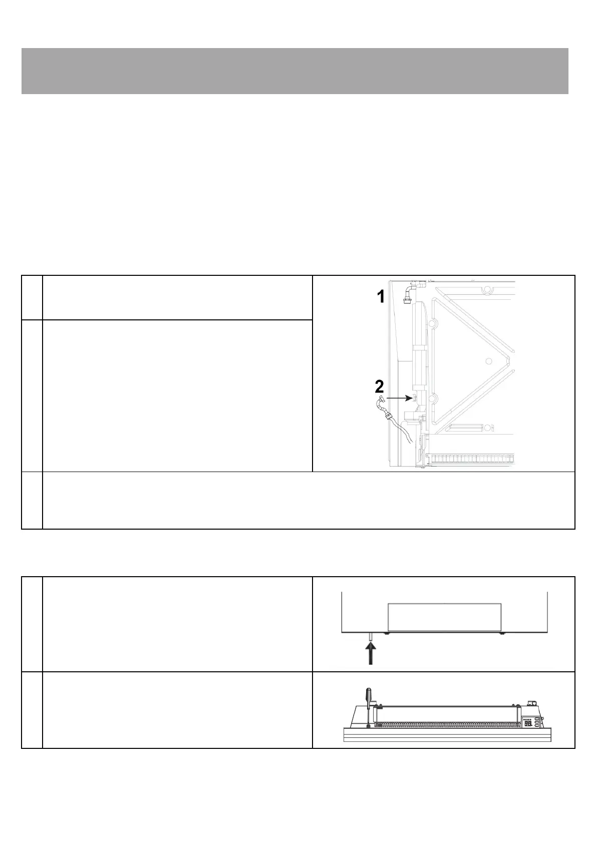
Connection to the water system
1
Connect the water inflow pipe of the generator (1/2''
(or 15-21) threaded connections) to the water inlet of
the device
2
Connect the return pipe of the generator (1/2'' (or 15-
21) threaded connections) to the swivel joint provided
with the device.
We don't recommend using a used swivel joint.
3
Reconnect the two wiring harness between the front and the back part of the device (refer to page 11, point
3).
Close the front making sure not to pinch the electrical connections.
Replace and screw the 2 screws (refer to page 11, point 1).
Drain air and water from the system
1
Place a tray under the drain pipe to collect water.
2
Take a flat screwdriver.
Slightly unscrew (1/4 of a turn) to drain air until water
comes, then retighten.
When cooling, it is necessary to insulate the pipes along their whole length, by making sure that both ends
are perfectly waterproof, in order to avoid any risk of condensation and to limit losses. The insulation used for
the pipes must be protected, for example with a thermally insulated sleeve up to 85°C.

Table of Contents

Related product manuals