EasyManua.ls Logo

Atlantic Panama A - 2; Encontrar Conexiones de Agua y Eléctricas en la Habitación

Atlantic Panama A
Print Icon
To Next Page IconTo Next Page
To Next Page IconTo Next Page
To Previous Page IconTo Previous Page
To Previous Page IconTo Previous Page
Loading...
7
Es importante prever suficiente espacio para el aparato con el fin de facilitar las reparaciones y trabajos de
mantenimiento.
Mantenga el aparato alejado de la corriente del aire, ya que podría interferir en su funcionamiento (p. ej., en un
sistema de ventilación central, etc.).
Cumpla las directrices de instalación del aparato.
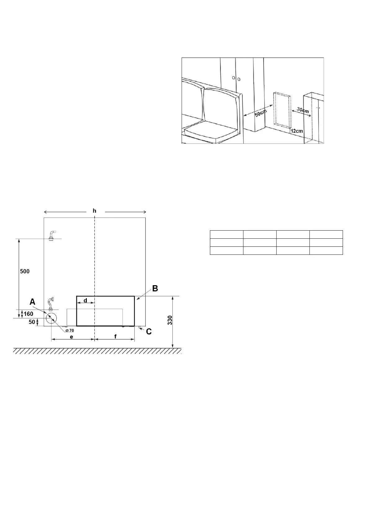
2/ Encontrar conexiones de agua y eléctricas en la habitación
Busque el lugar ideal para el montaje de su aparato en relación con la red de agua y con la red eléctrica de la
vivienda.
Planee para la entrada y salida de agua conexiones de 1/2''
(Dimensiones en mm)
h
d
e
f
635 140 240 210
920 170 380 350
A
: Zona de paso de los tubos
B
: Lugar ideal para la caja de toma de
corriente eléctrica
C
: Salida del cable de red

Table of Contents

Related product manuals