EasyManua.ls Logo

Atlantic Panama A - Funcionamiento

Atlantic Panama A
Print Icon
To Next Page IconTo Next Page
To Next Page IconTo Next Page
To Previous Page IconTo Previous Page
To Previous Page IconTo Previous Page
Loading...
11
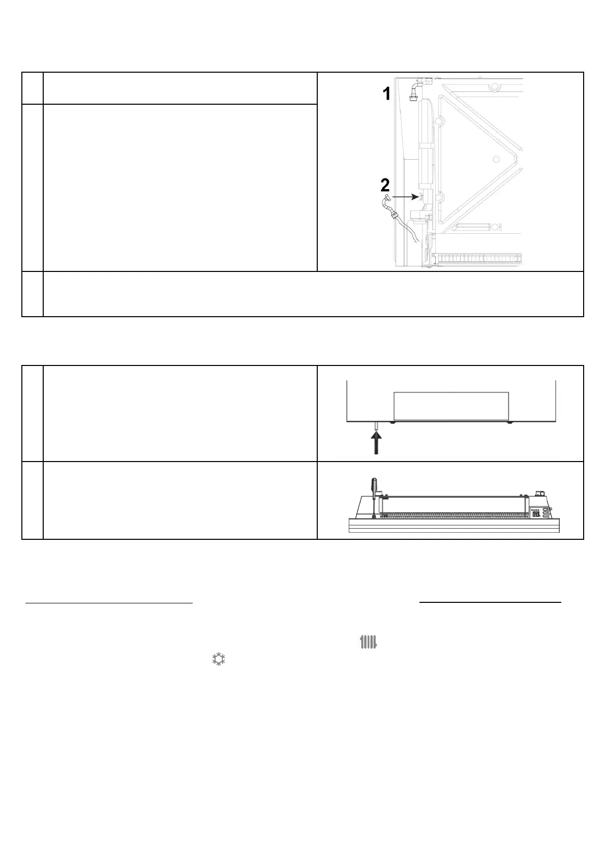
Conexión a la red del agua
1
Conecte el tubo impulsión de agua del generador al
conector de entrada del aparato (Conector con 1/2'').
2
Conecte el tubo de retorno del generador al codo de
conexión del aparato (Conector con 1/2'').
3
Conecte los 2 haces de cables entre el frontal y la parte trasera del aparato (véase punto 3, página 10).
Cierre el frontal. Preste atención a que las conexiones eléctricas no estén flojas. Atornille los 2 tornillos de
nuevo (véase el punto 1, página 10).
Ventilación del aparato
1
Coloque un cuenco debajo del tubo de ventilación
para recoger el agua.
2
Utilice un destornillador simple. Destornille con
cuidado para dejar salir el aire (1/4-de vuelta), hasta
que llegue el agua, entonces atornille de nuevo
Funcionamiento
Su aparato esconectado a un generador del tipo bomba de calor que le permite, dependiendo del ajuste,
calentar o enfriar su hogar. Si su bomba de calor está en el modo
, su aparato estará en el modo calor.
Si la bomba de calor está en el modo su aparato estará en el modo frío.
La necesidad de calor o de frío es gestionada por el ventilador integrado en el aparato. El frontal de calor
ofrece una ayuda extra en la calefacción.
Para más confort y ahorro, su aparato está equipado con una unidad de mando. Con él podrá ajustar todas
las funciones del aparato.
A la hora de calentar por vez primera pueda aparecer un ligero olor. Esto está relacionado con la
desintegración de posibles restos de la fabricación del aparato.

Table of Contents

Related product manuals