EasyManua.ls Logo

Atlantic Panama A - Page 65

Atlantic Panama A
Print Icon
To Next Page IconTo Next Page
To Next Page IconTo Next Page
To Previous Page IconTo Previous Page
To Previous Page IconTo Previous Page
Loading...
11
Anschluss des Geräts an den Wasserkreislauf.
Der Wasseranschluss muss gemäß den Anschlussplänen (Bedienungsanleitung) Ihrer Wärmepumpe oder Ihres
Heizkessels erfolgen.
Achten Sie je nach Konfiguration darauf, dass das Wasservolumen der Anlage für den Bedarf des Generators
ausreichend ist. Konsultieren Sie dazu die Bedienungsanleitung der Wärmepumpe oder des Niedertemperatur-
Heizkessels.
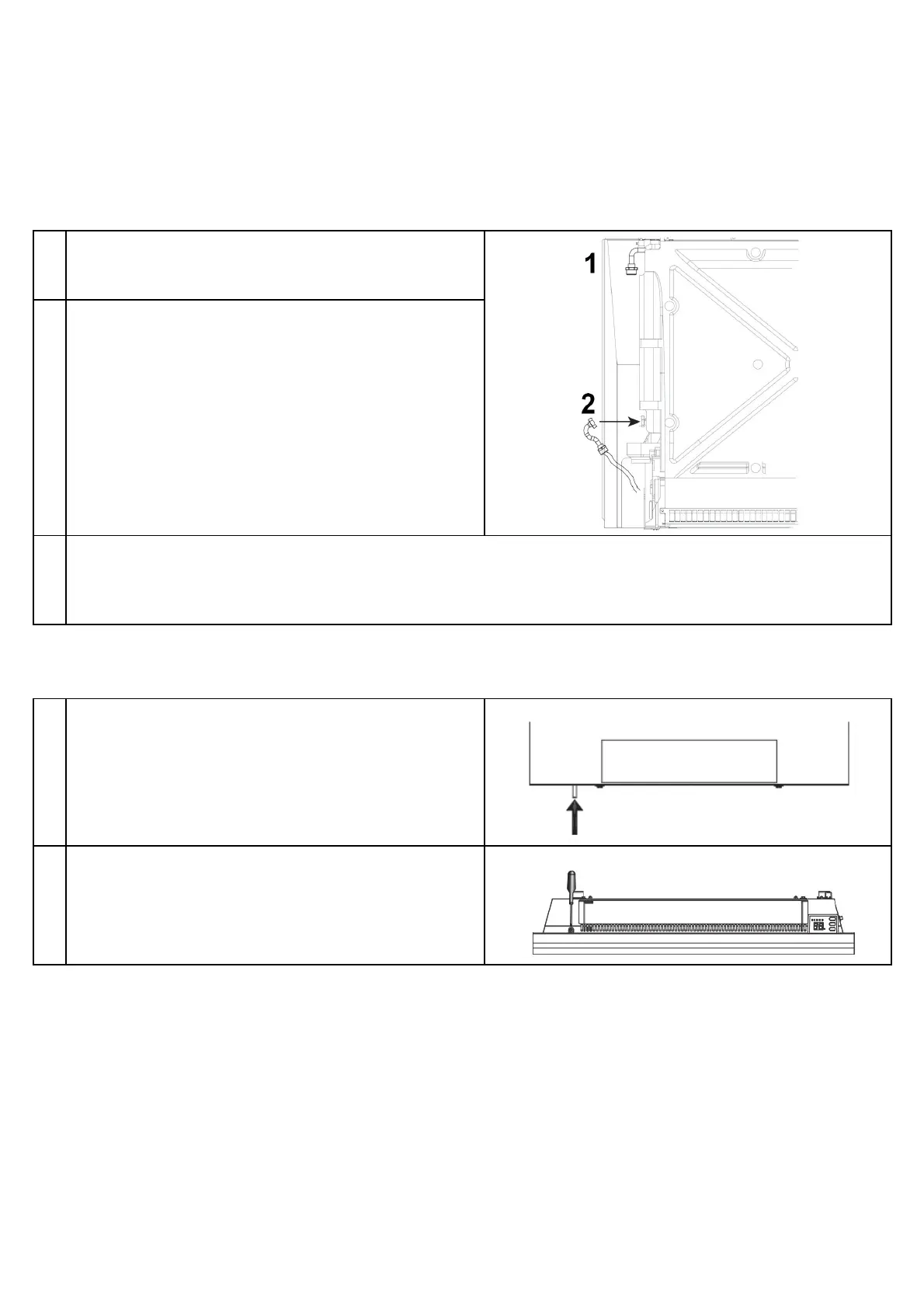
Anschluss an das Wassernetz
1
Schließen Sie das Wasserzuflussrohr des Generators
an den Einlassanschluss des Geräts an (Anschluss
mit 1/2'' bzw. 15-21-Gewinde).
2
Schließen Sie das Rückführungsrohr des Generators
an den mitgelieferten Schwenkanschluss des Geräts
an (Anschluss mit 1/2'' bzw. 15-21-Gewinde).
Ein gebrauchter Schwenkanschluss sollte nicht
wiederverwendet werden.
3
Verbinden Sie die 2 Kabelbündel zwischen der Front und dem hinteren Teil des Geräts (siehe Punkt 3, Seite
10).
Schließen Sie die Front. Achten Sie darauf, dass sie die elektrischen Verbindungen nicht einklemmen.
Schrauben Sie die 2 Schrauben wieder an (siehe Punkt 1, Seite 10).
Entlüften des Geräts
1
Stellen Sie ein Becken unter das Entlüftungsrohr, um
das Wasser aufzufangen.
2
Verwenden Sie einen flachen Schraubenzieher.
Schrauben Sie vorsichtig, um die Luft abzulassen
(1/4-Umdrehung), bis das Wasser kommt, schrauben
Sie dann wieder zu.

Table of Contents

Related product manuals