EasyManua.ls Logo

Atlas Copco G 22

Atlas Copco G 22
88 pages
To Next Page IconTo Next Page
To Next Page IconTo Next Page
To Previous Page IconTo Previous Page
To Previous Page IconTo Previous Page
Loading...
Full-Feature
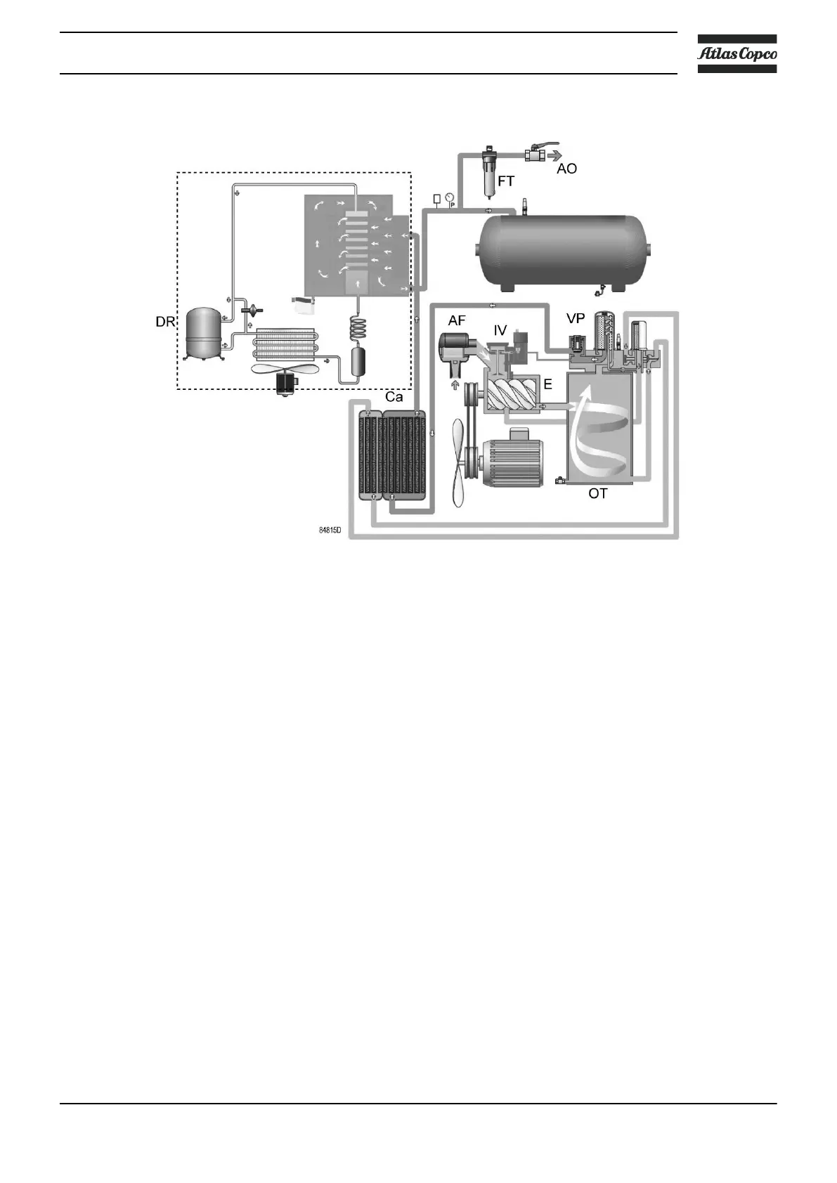
Air flow, G 15L, G 18 and G 22 Tank-mounted Full-Feature
Air drawn through filter (AF) and open inlet valve (IV) into compressor element (E) is
compressed. Compressed air and oil flow into oil separator/tank (OT). The air is discharged via
minimum pressure valve (Vp), air cooler (Ca) and air dryer (DR) towards the air outlet (AO).
Instruction book
2920 7119 21 15

Table of Contents

Related product manuals