EasyManua.ls Logo

Atlas Copco GA 132 VSD - Page 80

Atlas Copco GA 132 VSD
166 pages
To Next Page IconTo Next Page
To Next Page IconTo Next Page
To Previous Page IconTo Previous Page
To Previous Page IconTo Previous Page
Loading...
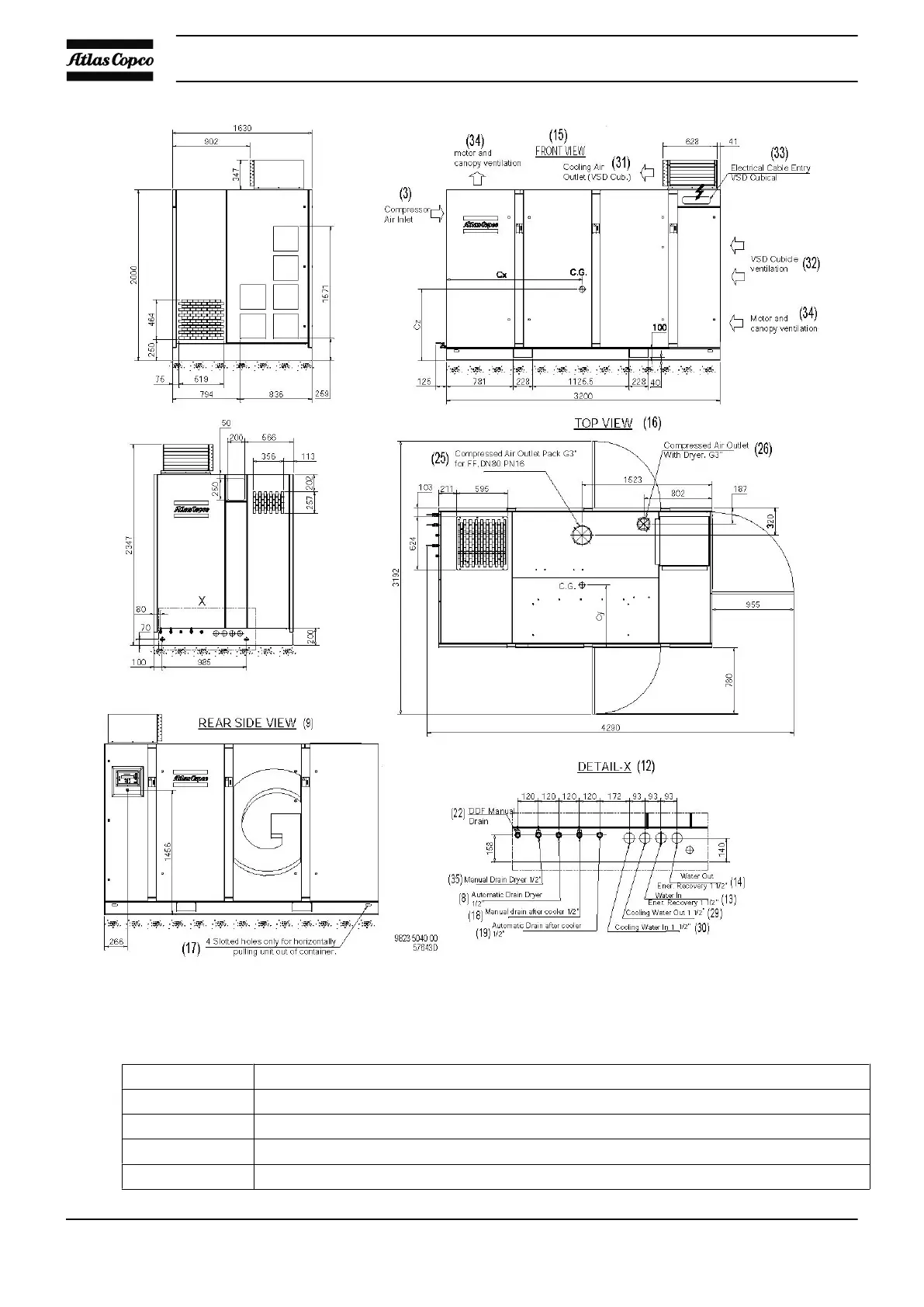
Dimension drawing of water-cooled VSD compressors
Text on drawing
Reference Designation
(1) Compressed air outlet
(2) Cooling air outlet
(3) Compressor air inlet
(4) Cooling air inlet
Instruction book
78 2920 1728 05

Table of Contents

Related product manuals