EasyManua.ls Logo

Atlas Copco GA160

Atlas Copco GA160
41 pages
To Next Page IconTo Next Page
To Next Page IconTo Next Page
To Previous Page IconTo Previous Page
To Previous Page IconTo Previous Page
Loading...
2920 1251 02
14
Instruction book
1.3.5.2 Loading
When the net pressure decreases to the lower limit of the
working pressure (loading pressure), solenoid valve (Y1) is
energized. The plunger of solenoid valve (Y1) moves upwards
against spring force:
GA/GA W 90 up to -160
1. The plungers of valves (V1 and V2) return to their original
positions by spring force as the control pressure is vented
via solenoid valve (Y1).
2. Control pressure is fed via flexible (2) or flexible (4),
selector valve (Ss) and valve (V1) to chamber (1) of
unloader (UA) to open unloading valve (UV).
3. Valve (V2) stops blowing off the air which is drawn in.
4. Air delivery is resumed (100 %), the compressor runs
loaded.
GA/GA W 200 up to -315
1. The plungers of valves (V1,V2 and V3) return to their
original positions by spring force as the control pressure
is vented via solenoid valve (Y1).
2. Control pressure is fed via flexible (2) or flexible (4),
selector valve (Ss) and valve (V1) to chambers (1) of
unloaders (UA1 and UA2) to open unloading valves (UV1
and UV2).
3. Valves (V2 and V3) stop blowing off the air which is drawn
in.
4. Air delivery is resumed (100 %), the compressor runs
loaded.
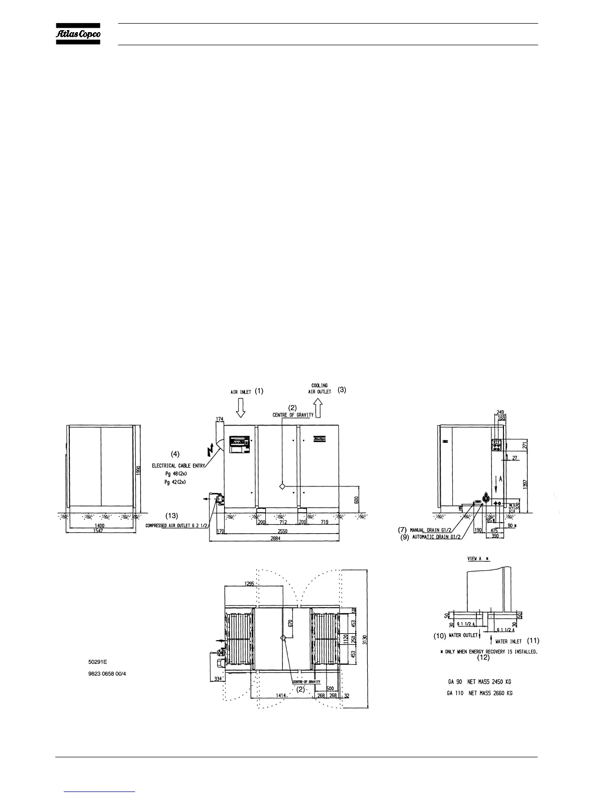
2 INSTALLATION
2.1 Dimension drawings (Figs. 6)
Fig. 6a. Dimension drawing GA90 and -110

Related product manuals