EasyManua.ls Logo

ATTACK EKO - Electrical Installation Guide (ATTACK PLQ); Electrical Installation Guide (ATTACK KLQ)

ATTACK EKO
28 pages
Print Icon
To Next Page IconTo Next Page
To Next Page IconTo Next Page
To Previous Page IconTo Previous Page
To Previous Page IconTo Previous Page
Loading...
20 |
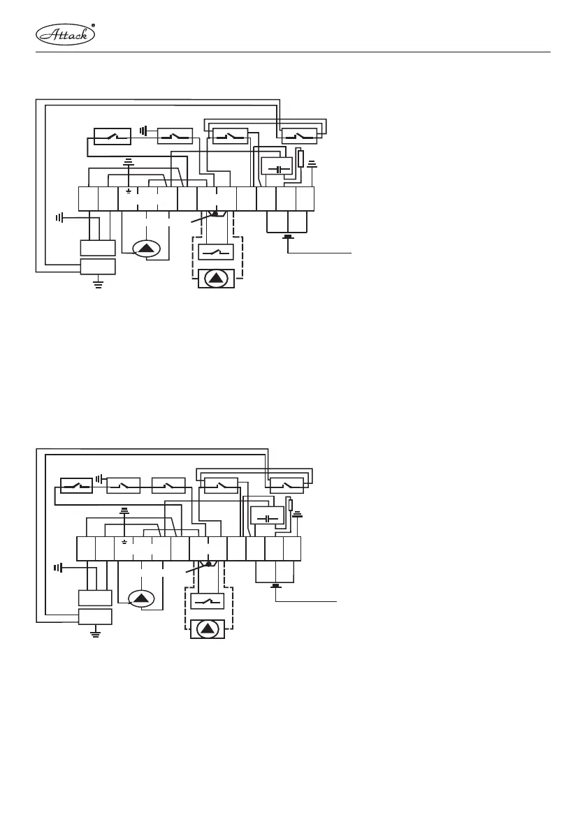
Connecting the electrical installation of the ATTACK PLQ boiler
DESCRIPTION:
A – automatics V 4600Q
TP – room thermostat
C – capacitor
A1 – two-stage regulator of
automatics
V – main switch
TK – boiler thermostat
OČ – circuit pump
PR – output switch
ST – flue gas thermostat with
reset
TV – three-way valve Honey-
well VC4613
O – orange conductor of the
three-way valve
S – grey conductor of the
three-way valve
Connecting the electrical installation of the ATTACK KLQ boiler
ATTENTION:
Connect the TP (room ther-
mostat), eventually the TV
(three-way valve) as well into
the terminals 7 and 8.
Remove the interconnection!
ATTENTION:
Connect the TP (room ther-
mostat), eventually the TV
(three-way valve) as well into
the terminals 7 and 8.
Remove the interconnection!
DESCRIPTION:
A – automatics V 4100Q
TP – room thermostat
C – capacitor
A1 – two-stage regulator of
automatics
V – main switch
TK – boiler thermostat
OČ – circuit pump
PR – output switch
HT – emergency thermostat
with reset
ST – flue gas thermostat with reset
TV – three-way valve Honey-
well VC4613
O – orange conductor of the
three-way valve
S – grey conductor of the
three-way valve
73
33
a9+]
3(
818
8
1
818
$
$
7.
9 35
&
2ý
   




67
79
)
62
ý(53$'/2
73
3(
818
8
1
818
$
$
73
+77.
9 35
&
2ý
   




67
79
62
)
a9+]
33
73
ý(53$'/2
PUMP
PUMP
Interconnection
Interconnection

Table of Contents

Related product manuals