EasyManua.ls Logo

AVS Electronics BM60HP - Bausatz TERM 1 (Extrazubehör) Innerer Heizwiderstand; Bausatz AMP (Extrazubehör) Entfernungsschutz

AVS Electronics BM60HP
Print Icon
To Next Page IconTo Next Page
To Next Page IconTo Next Page
To Previous Page IconTo Previous Page
To Previous Page IconTo Previous Page
Loading...
- 82 -
TAMPER
SENS.
COMP.
SW1
TP
1
B
FF
TAMPER
T T
CNC
AUX
DB
DA
8
USB
SI
SS
SO
Bausatz TERM 1 (Extrazubehör) Innerer Heizwiderstand
Bei der Installation in einem Außenbereich oder Innenraum, in dem
die Temperatur unter 0°C sinken kann, ist es unentbehrlich,
sowohl in den Empfänger als auch in den Sender den
Heizbausatz Mod.Term 1 einzubauen.
Dies um zu vermeiden, dass sich Kondenswasser
bildet, das den einwandfreien Betrieb des
elektronischen Schaltkreises beeinträchtigen könnte.
Der Heizbausatz, ein Extrazubehör, besteht aus
einem Schaltkreis, in dem sich ein
elektromechanischer Thermostat, ein
Heizwiderstand und ein Klemmenbrett zum
Anschluss der Stromversorgung befinden.
Die Stromversorgung ist mit einem äußeren
Transformator mit Ausgang zu 12 V
Wechselspannung zu liefern. Jeder Heizwiderstand
nimmt 150 mA bei Wechselspannung von 12 Volt
auf.
Der Thermostat greift ein und trennt den Widerstand
von der Stromversorgung, wenn im Innern des Behälter eine
Temperatur von 30°C erreicht ist.
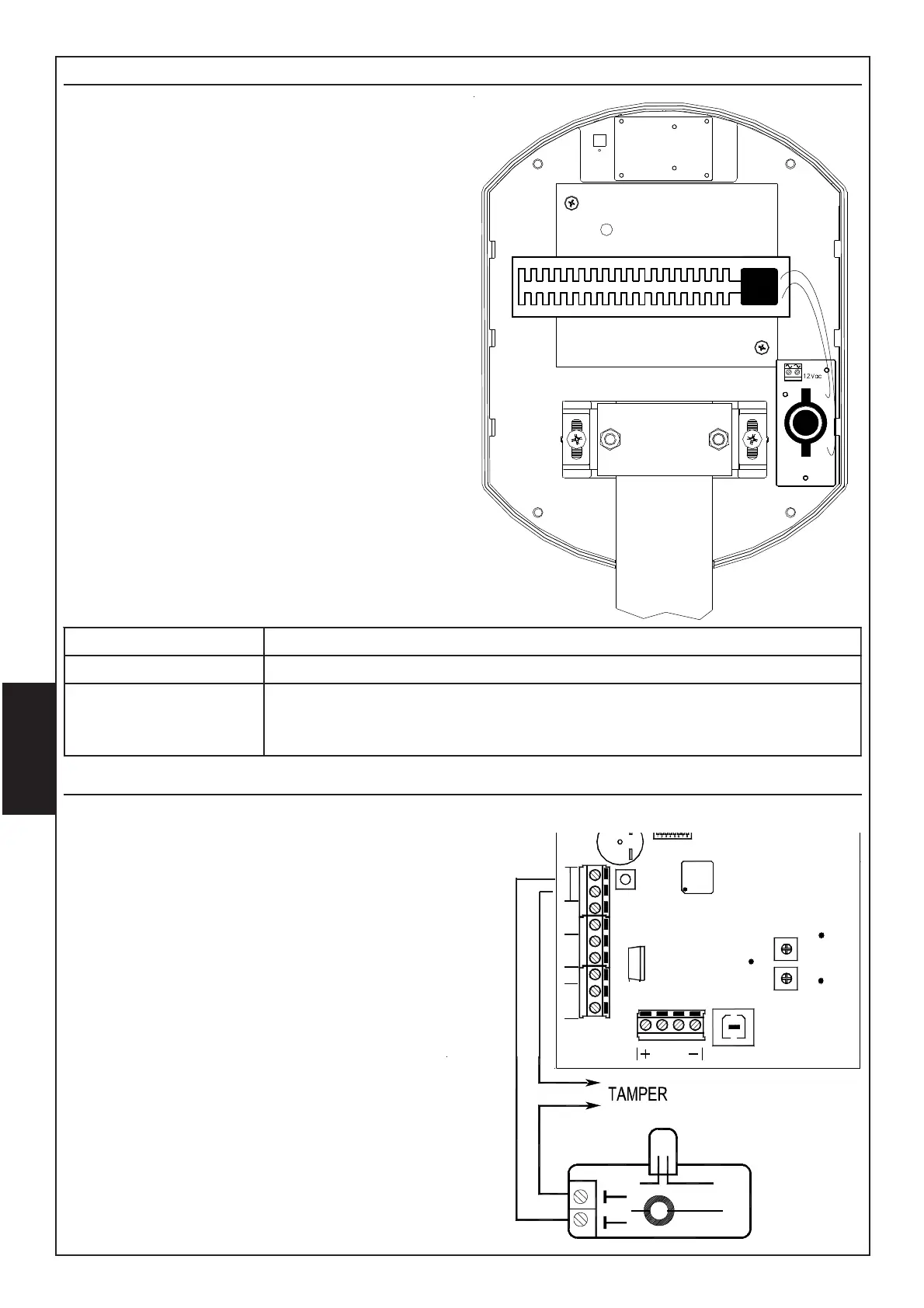
Bausatz AMP (Extrazubehör) Entfernungsschutz
Der Bausatz zum Entfernungsschutz Mod. AMP
besteht aus zwei Kolben, die dazu dienen, im Falle
von Aufbrechen oder Entfernen der Barriere aus der
entsprechenden Halterung einen Alarm zu senden.
Dieser Bausatz ist so zu positionieren, dass ein Kolben
in senkrechter Position in Bezug auf das Gerät und
der andere in waagrechter Position montiert ist, wie
in der Abbildung gezeigt.
Dieses System ermöglicht einen vollkommenen
Schutz gegen jeden Versuch zur:
- Entfernung der Barriere aus den Halterungen;
- Entfernung der Halterungen aus den
Befestigungspunkten.
Der waagrechte Kolben ist so anzubringen, dass der
Kontakt sich öffnet, sobald versucht wird, die Barriere
zu bewegen.
Vor dem Anschluss der Tamper-Leitung an die
Zentrale kontrollieren, dass der Kontakt der einzelnen
Kolben ebenso wie die Tamper-Leitung geschlossen
ist.
:gnusiepS dnleshceWtloV21
:emhanfuA xamAm051
:rotamrofsnarT ~V022:gnagniE
~V21:gnagsuA
gnutsielw02:eraapnereirrab4rüF
D
E
U
Beispiel: RX BARRIERE

Table of Contents

Related product manuals