EasyManua.ls Logo

Axis P1367-E - Page 77

Axis P1367-E
178 pages
Print Icon
To Next Page IconTo Next Page
To Next Page IconTo Next Page
To Previous Page IconTo Previous Page
To Previous Page IconTo Previous Page
Loading...
AXISP1367-ENetworkCamera
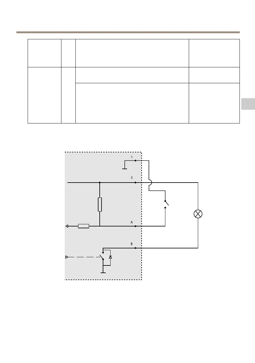
DC-Ausgang
2
KannfürdieStromversorgungvonZusatzgeräten
verwendetwerden.
Hinweis:DieserKontaktkannnurfürden
Stromausgangverwendetwerden.
12VDC
Max.Stromstärke=
50mA
DigitaleingangzumAktivierenmitPin1
verbinden;zumDeaktivierennichtanschließen.
0bismax.30VDC
Kongurier-
bar(Ein-
oderAus-
gang)
3–
4
DigitalausgangbeiAktivierungmitPin1
verbunden;wenndeaktiviert:frei(nicht
verbunden).BeiVerwendungmiteinerinduktiven
Last,z.B.einemRelais,mussparallelzurLast
zumSchutzvorSpannungsspitzeneineDiode
zwischengeschaltetwerden.
0bismax.30VDC,
OpenDrain,100mA
1
0VDC(-)
2
DC-Ausgang12V,max.50mA
A
E/AalsEingangkonguriert
B
E/AalsAusgangkonguriert
77
DE

Table of Contents

Other manuals for Axis P1367-E

Related product manuals