EasyManua.ls Logo

baltur BGN 50 - Page 44

baltur BGN 50
Print Icon
To Next Page IconTo Next Page
To Next Page IconTo Next Page
To Previous Page IconTo Previous Page
To Previous Page IconTo Previous Page
Loading...
44
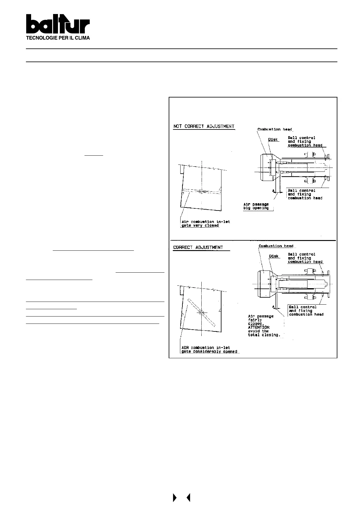
ADJUSTMENT OF THE AIR FLOW TO THE BURNER HEAD (see BT 8769/1)
The burner head is fitted with a regulator control, which closes or opens the air passage between the disk and the head.
By closing the air passage, a high pressure on the disk can be achieved, for low flow rates as well.
The increase speed and turbulence of the air makes it penetrate with increased force, thus giving a better mixture and
greater flame stability.
It may be essential to have high air pressure at the
disk, to stop flame pulsation.
This condition is practically indispensable when the
burner is working on a pressurized boiler and/or a high
thermic load.
It is clear from the above description that the device
that closes the air to the burner head must be taken
to a position where it always obtains a level behind
the disk that is much higher than the air pressure level.
It is recommended to set the device with the air to the
head closed off, so that a sizable opening is required
on the air shutter that controls the flow to the burner
fan intake.
Obviously, this condition must occur when the burner
is working at the maximum desired delivery rate. In
practice, the setting operation should be started with
the device that closes the air to the burner head at an
intermediate position, and the burner should be started
up for a trial setting procedure, as described previ-
ously.
When the maximum desired delivery rate is reached,
adjust the position of the device that closes the air to
the burner head, moving it forwards in order to achieve
an adequate air flow in delivery, with the intake air
control shutter well open.
When reducing the size of the air passage to the burner
head, avoid closing it completely.
Ensure that the burner head is perfectly centered in
relation to the disk.
If it is not perfectly centered, the flame may burn badly
and overheat the head, causing rapid deterioration.
The centering can be checked by locking from the
inspection hole on the rear part of the burner and then
fully tightening the screws (if present) that hold in po-
sition the device that controls the air flow to the burner
head.
N.B. Check that the ignition occurs in a regular manner ; if the passage between the head and
the disk is closed, it may occur that the speed of the mixture (combustion air) is so high that ignition is made
difficult. If this occurs, then the regulator must be opened gradually until it is in a position where the ignition
occurs in a regular manner, and this position must be accepted as the set position.
Remember that, for the first flame, it is preferable to limit the quantity of air to the bare minimum necessary for a
safe ignition, even in the most demanding cases.
AIR REGULATION PRINCIPLE DIAGRAM
FOR GAS BURNERS N° BT 8769/1

Related product manuals