EasyManua.ls Logo

B&PLUS RCS600 - Page 9

B&PLUS RCS600
32 pages
Print Icon
To Next Page IconTo Next Page
To Next Page IconTo Next Page
To Previous Page IconTo Previous Page
To Previous Page IconTo Previous Page
Loading...
- 9 -
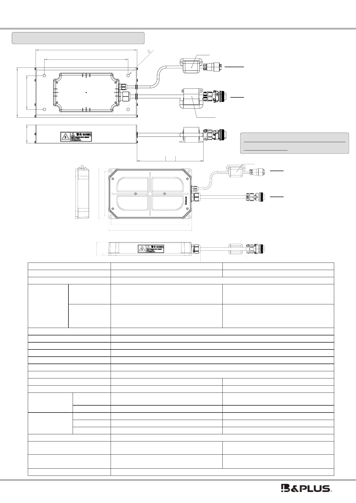
Wireless charging system 600W specication
For 12V24V48V battery
85
125
210
254
4x
7
フェライトコア
E04SR401938
フェライトコア
RFC-H13
46
3000
135
150
235
フェライトコア
RFC-H13
250
7
40
(3000)
RCS600-AH-L
Made in japan
Serial No. xxxxxxx
85
125
210
254
4x 7
フェライトコア
E04SR401938
フェライトコア
RFC-H13
46
3000
3P connector
for power supply
5P connector
for communication
Ferrite clamp
Ferrite clamp
3P connector
for power supply
5P connector
for communication
Ferrite clamp
Standard Specication Active Head
Long Distance Specication Active Head
Type code
RCS600-AH(3.0m),RCS600-AH-005(0.5m)
RCS600-AH-L(3.0m), RCS600-AH-L-005(0.5m)
Applicable unit RCS600-AC
Rated gap Distance 0 20mm
20 40mm * Be sure to follow the
specied distance.Using outside the
specications may damage the equipment.
Center o󱐯set
± 10 mm in the X axis direction and ± 15 mm
in the Y axis direction (For details, see P. 13)
± 10mm in X axis direction. ± 20mm
in Y axis direction. However, the total
displacement of the XY axes can be
up to 20mm. (See page 13 for details)
Operating temperature 0...50℃
Storage temperature -10...50℃
Operating humidity 35 ... 90% RH or less However, no condensation
Isolation 50M Ohm
Dielectric strength 2000 VAC / 1min
Shock rating 10 G, in the X, Y, and Z directions 11ms
Vibration rating 19.6 m / sec
2
(10 to 55 Hz), 20 times in X and Y directions
Protection class IP65 (Indoor installation type) IP6X (Indoor installation type)
Weight(including cable connector part)
3.0kg(Cable length3.0m)/2.5kg(Cable length0.5m)
3.3kg(Cable length3m)/2.8kg(Cable length0.5m)
Connection Supply Connected to the Charging unit at the
(male) 3-pin round
Connected to the Charging unit at the
(male) 3-pin round
Communication
Connected to the Charging unit at the (male) 5-pin round Connected to the Charging unit at the (male) 5-pin round
Material Case PPS, aluminum PPS, aluminum
Output cable
φ 8.6 2.5mm
2
3 PUR φ 8.6 2.5mm
2
3 PUR
Communication cable
φ 5.6 0.3mm
2
4 PUR φ 5.6 0.3mm
2
4 PUR
Mounting part For enclosure xing φ 7 × 4 places
Accessories
positioning label,2 ferrite clamp RFC -H13(white)
1PC.,
f
errite clamp E04SR401938 1PC.
positioning label,ferrite clamp RFC-H13 (white) 1PC.,
ferrite clamp E04SR401938 for power cable (gray)1PC.
Max. cable length when us-
ing optional cable
5.5m 5.5m *
Extending the cable of a long-distance
head may cause premature switching of CC ⇒ CV.
Remarks See page 26-27 for cable variations.
Standard Specicatoin Active Head
Long Distance Specication
Active Head