EasyManua.ls Logo

Bartscher 116.402 - Page 133

Bartscher 116.402
Print Icon
To Next Page IconTo Next Page
To Next Page IconTo Next Page
To Previous Page IconTo Previous Page
To Previous Page IconTo Previous Page
Loading...
- 132 -
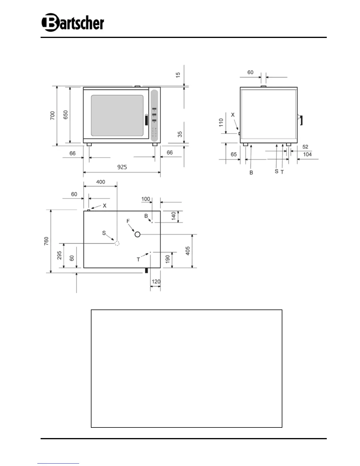
Piec konwekcyjno-parowy 4 x 1/1 GN
Piec konwekcyjno-parowy 4 x 1/1 GN, 4 x 600x400
Moc przyłączeniowa: 6,6 kW / 2 NAC 380 V
Wymiary: szer. 925 x gł. 760 x wys. 700 mm
Rozstaw między blachami: 80 mm
Waga: 60 kg
Nr art.: 116.404
Objaśnienia:
X = wlot wody 3/4“
F = spust pary 60 mm
B = doprowadzenie prądu
T = termostat bezpieczeństwa
S = spust wody
Wymiary w mm

Table of Contents

Related product manuals