EasyManua.ls Logo

Bartscher 116.402 - Page 134

Bartscher 116.402
Print Icon
To Next Page IconTo Next Page
To Next Page IconTo Next Page
To Previous Page IconTo Previous Page
To Previous Page IconTo Previous Page
Loading...
- 133 -
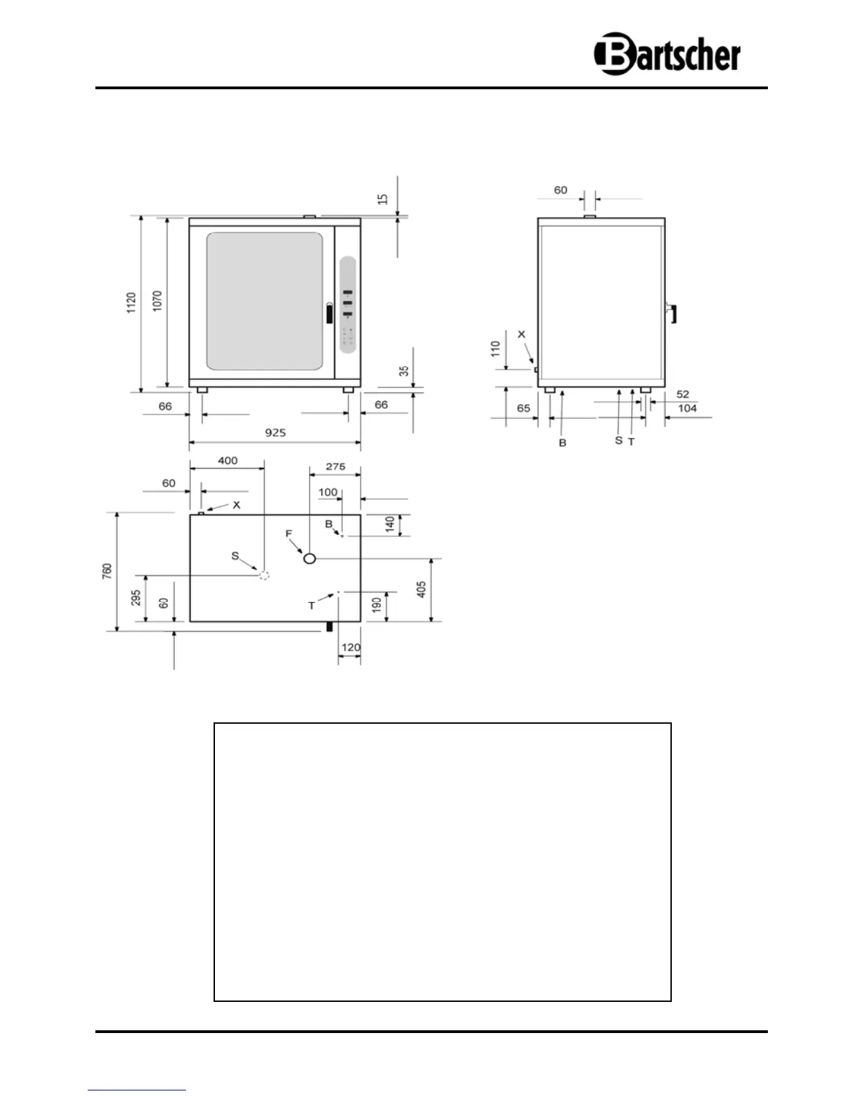
Piec konwekcyjno-parowy 10 x 1/1 GN
Piec konwekcyjno-parowy 10 x 1/1 GN, 10 x 600x400
Moc przyłączeniowa:12,0 kW / 3 NAC 380-400 V
Wymiary: szer. 925 x gł. 760 x wys. 1120 mm
Rozstaw między blachami: 80 mm
Waga: 110 kg
Nr art.: 116.410
Objaśnienia:
X = wlot wody 3/4“
F = spust pary 60 mm
B = doprowadzenie prądu
T = termostat bezpieczeństwa
S = spust wody
Wymiary w mm

Table of Contents

Related product manuals