EasyManua.ls Logo

Bell System bellview - 2 Door 11-60 Way System Wiring; Diagram 6 a: Cabling Layout

Default Icon
58 pages
Print Icon
To Next Page IconTo Next Page
To Next Page IconTo Next Page
To Previous Page IconTo Previous Page
To Previous Page IconTo Previous Page
Loading...
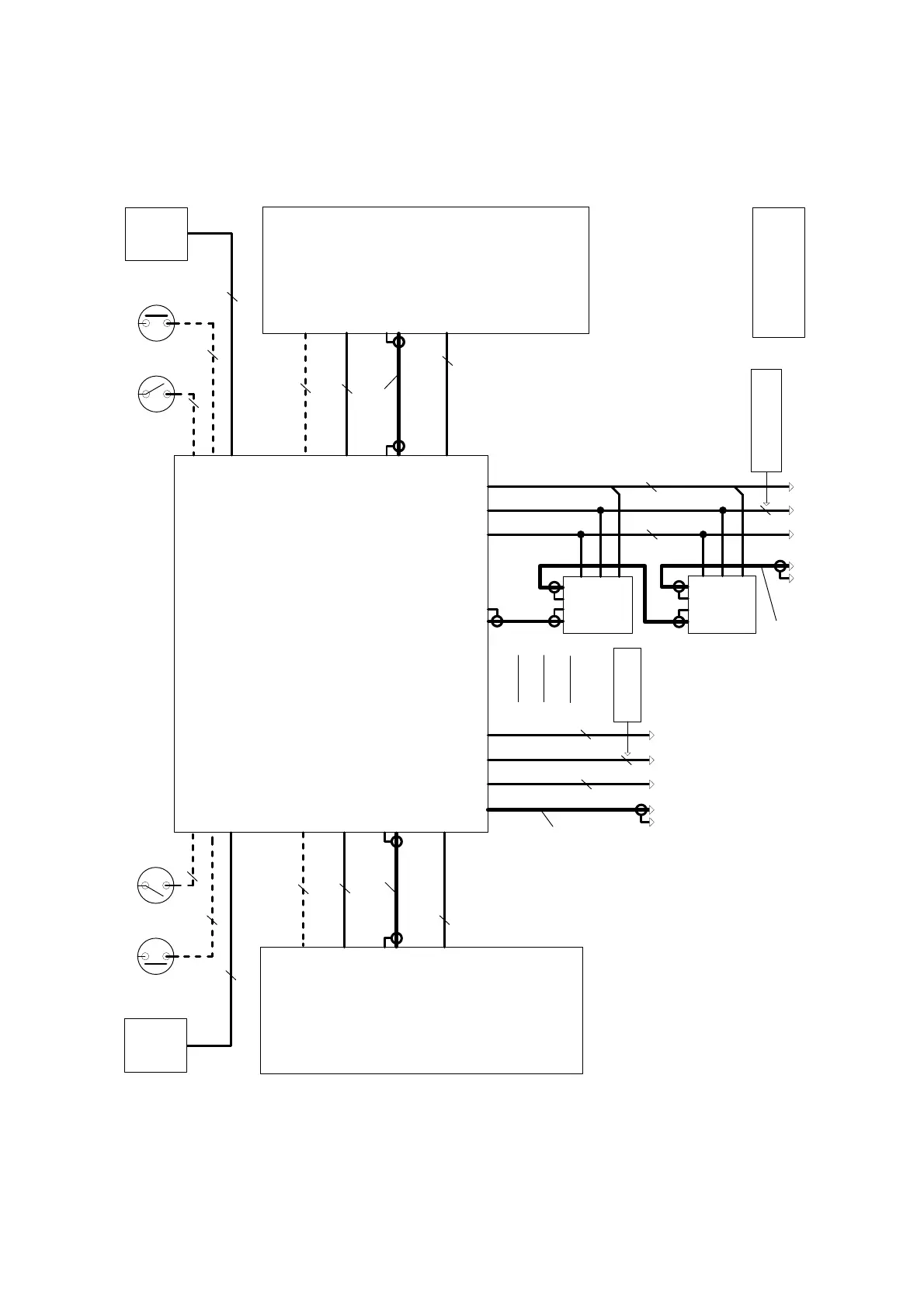
Door
Exit Button
Door Monitor
Switch
(optional)
(optional)
or
Fire Switch
Diagram 6a : Cabling for a 2 Door 11-60 Way Bell View Video System
Door
Lock
Release
Exit ButtonDoor Monitor
Switch
(optional)
(optional)
or
Fire Switch
Lock
Release
2
8
1 per Phone
75R Co-ax
2
8
1 per Phone
75R Co-ax
75R Co-ax
2nd
Video
Phone
Phone
Video
1st
To remaining phones
2
1 per Phone
2 DOOR
BV 11-60
Panel
1
2
Panel
2
1
2
2
2
2
2
2
To Phones 1 to 10
1st group
Phones 51-60
Phones
6th group
of up to 10
1 per phone
75R Co-ax
Misc.
Trades
Push Buttons
Push Buttons
Misc.
Trades
Call Lines
Other (common wires)
Video Power
2
Call Lines
Other (common wires)
Video Power
© 1997 Bell System (Telephones) Ltd.
5 - 9 (see the
previous pages)
5 - 9 (see the
previous pages)
PSU Control
Cabinet
Page 4 of 6

Table of Contents

Related product manuals