EasyManua.ls Logo

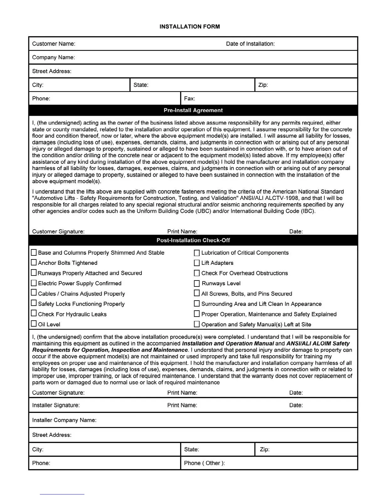
BendPak XpR-10ACX - Installation Form

Default Icon
60 pages
Print Icon
To Next Page IconTo Next Page
To Next Page IconTo Next Page
To Previous Page IconTo Previous Page
To Previous Page IconTo Previous Page
Loading...
4949

Related product manuals