EasyManua.ls Logo

BenQ 2720S - Page 34

BenQ 2720S
67 pages
Print Icon
To Next Page IconTo Next Page
To Next Page IconTo Next Page
To Previous Page IconTo Previous Page
To Previous Page IconTo Previous Page
Loading...
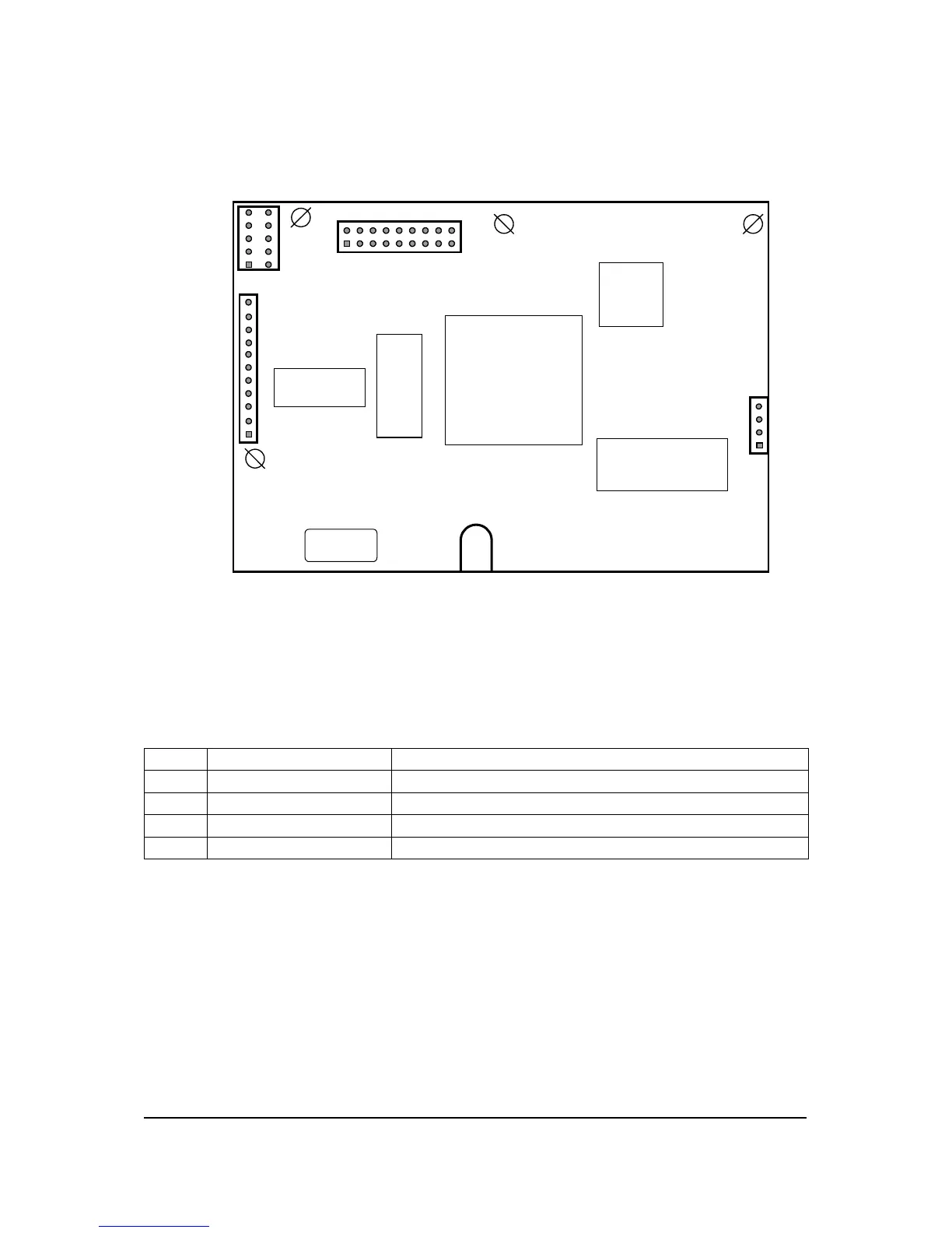
5.7.2 MainBoard
ASP
ASIC
ASIC
CPU
78e516
J1
J2
J11
Host
J13
J4
RAM
MOTOR
DRIVER
Figure 5-11 Main Board of Film Scanner
Connector J1 on Scanner 2740S MainBoard
J1 is connected to the line motor to drive the stepping motor.
Pin # Signal name Description
1 LM1A Line motor pulse phase 1 of coil A
2 LM1B Line motor pulse phase 1 of coil B
3 LM2A Line motor pulse phase 2 of coil A
4 LM2B Line motor pulse phase 2 of coil B
5-12 API Confidential Electrical Systems
No Copy/Reproduction allowed

Related product manuals