EasyManua.ls Logo

Biasi MULTIPOINT 14S - Electrical Diagram

Biasi MULTIPOINT 14S
36 pages
Print Icon
To Next Page IconTo Next Page
To Next Page IconTo Next Page
To Previous Page IconTo Previous Page
To Previous Page IconTo Previous Page
Loading...
- 9 -
USE
DESCRIPTION OF UNIT
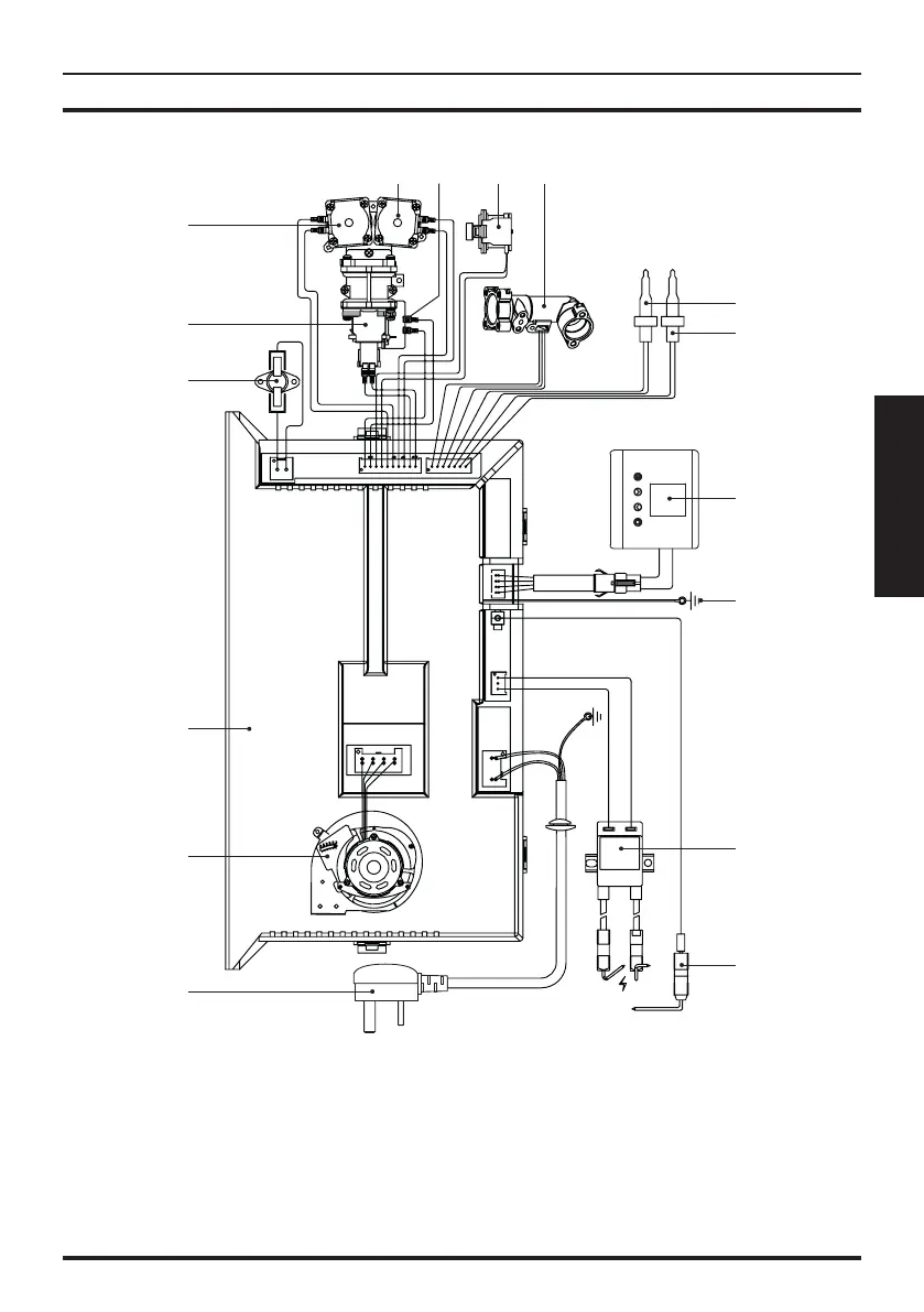
2.2 Electrical diagram
Figure 2.1
1 Gas separate valve 1
2 Gas proportional valve
3 Thermostat
4 Main board
5 Direct current fan
6 Power cord
7 Flame detector
8 Igniter
9 Earth
10 Display
11 Water inlet temperature sensor
12 Water outlet temperature sensor
13 Water flow sensor
14 Gas separate valve 3
15 Main gas valve
16 Gas separate valve 2
GND
1
2
3
5
4
6
7
8
9
10
11
12
1316 1415