EasyManua.ls Logo

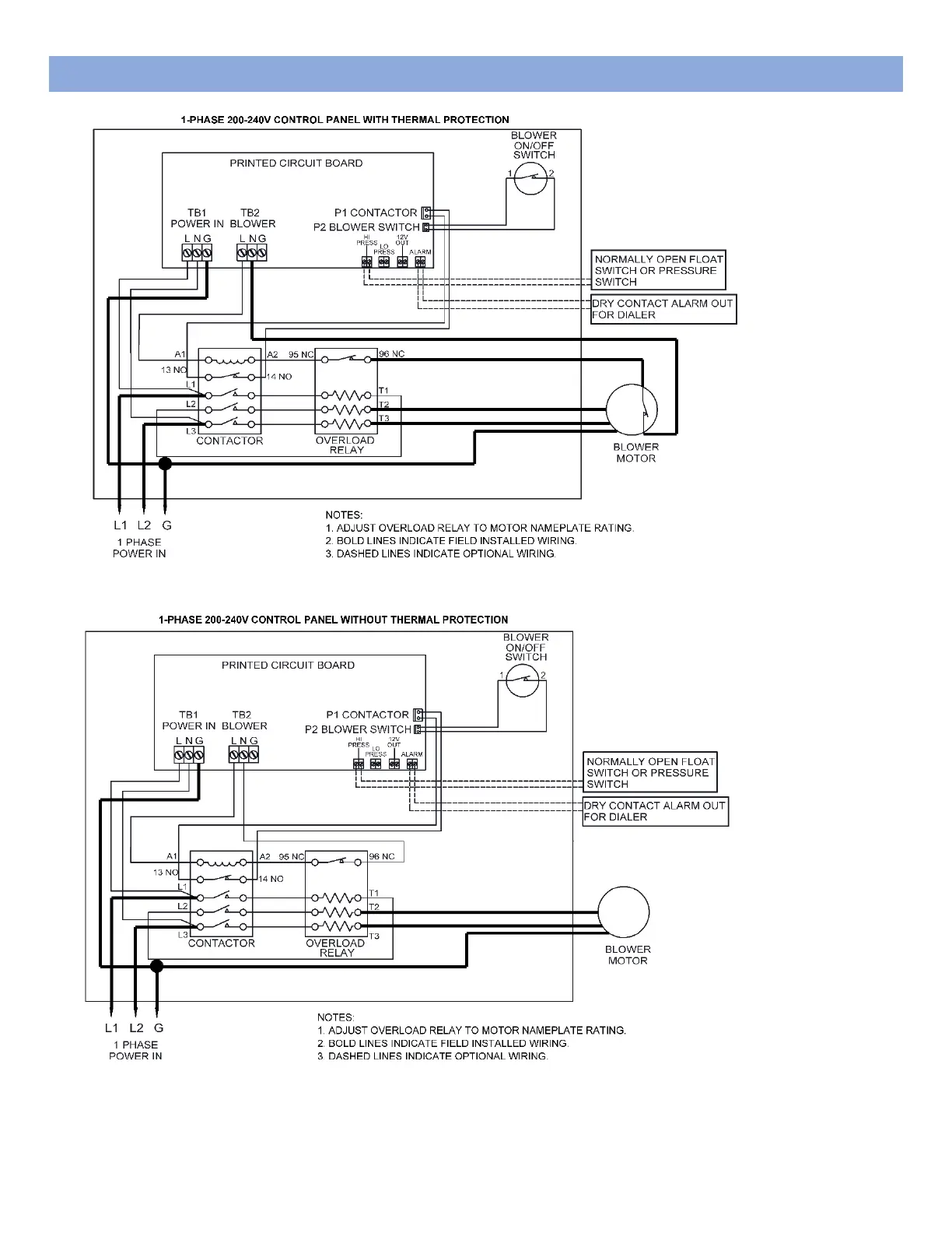
BIO-MICROBICS MicroFAST 0.5 - LARGE CONTROL PANEL SCHEMATICS; 1-Phase 200-240 V Panel Schematic (Thermal Protection); 1-Phase 200-240 V Panel Schematic (No Thermal Protection)

Default Icon
30 pages
Print Icon
To Next Page IconTo Next Page
To Next Page IconTo Next Page
To Previous Page IconTo Previous Page
To Previous Page IconTo Previous Page
Loading...
22
LARGE CONTROL PANEL SCHEMATICS

Other manuals for BIO-MICROBICS MicroFAST 0.5

Related product manuals