EasyManua.ls Logo

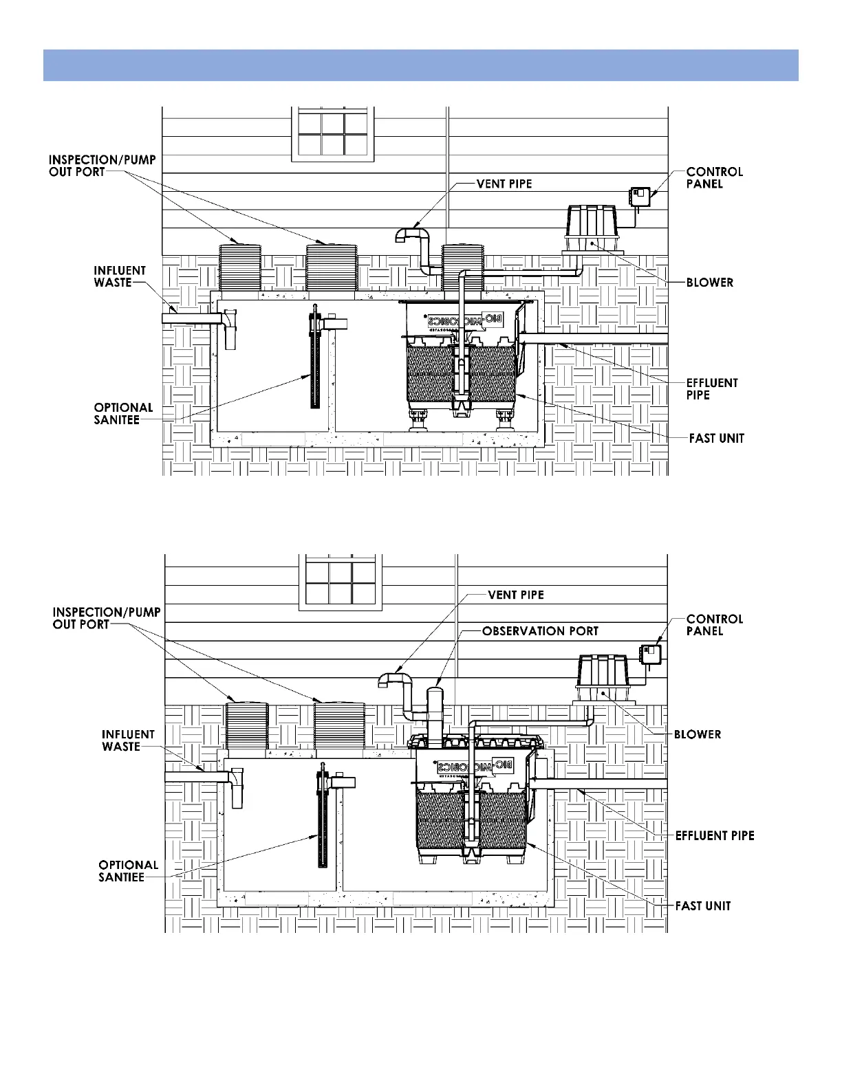
BIO-MICROBICS MicroFAST 0.5 - SYSTEM LAYOUT; Foot Option Layout Diagram; Lid Option Layout Diagram

Default Icon
30 pages
Print Icon
To Next Page IconTo Next Page
To Next Page IconTo Next Page
To Previous Page IconTo Previous Page
To Previous Page IconTo Previous Page
Loading...
4
LAYOUT
SETTLING ZONE
TREATMENT ZONE
SETTLING ZONE
TREATMENT ZONE
LID OPTION
FOOT OPTION

Other manuals for BIO-MICROBICS MicroFAST 0.5

Related product manuals