EasyManua.ls Logo

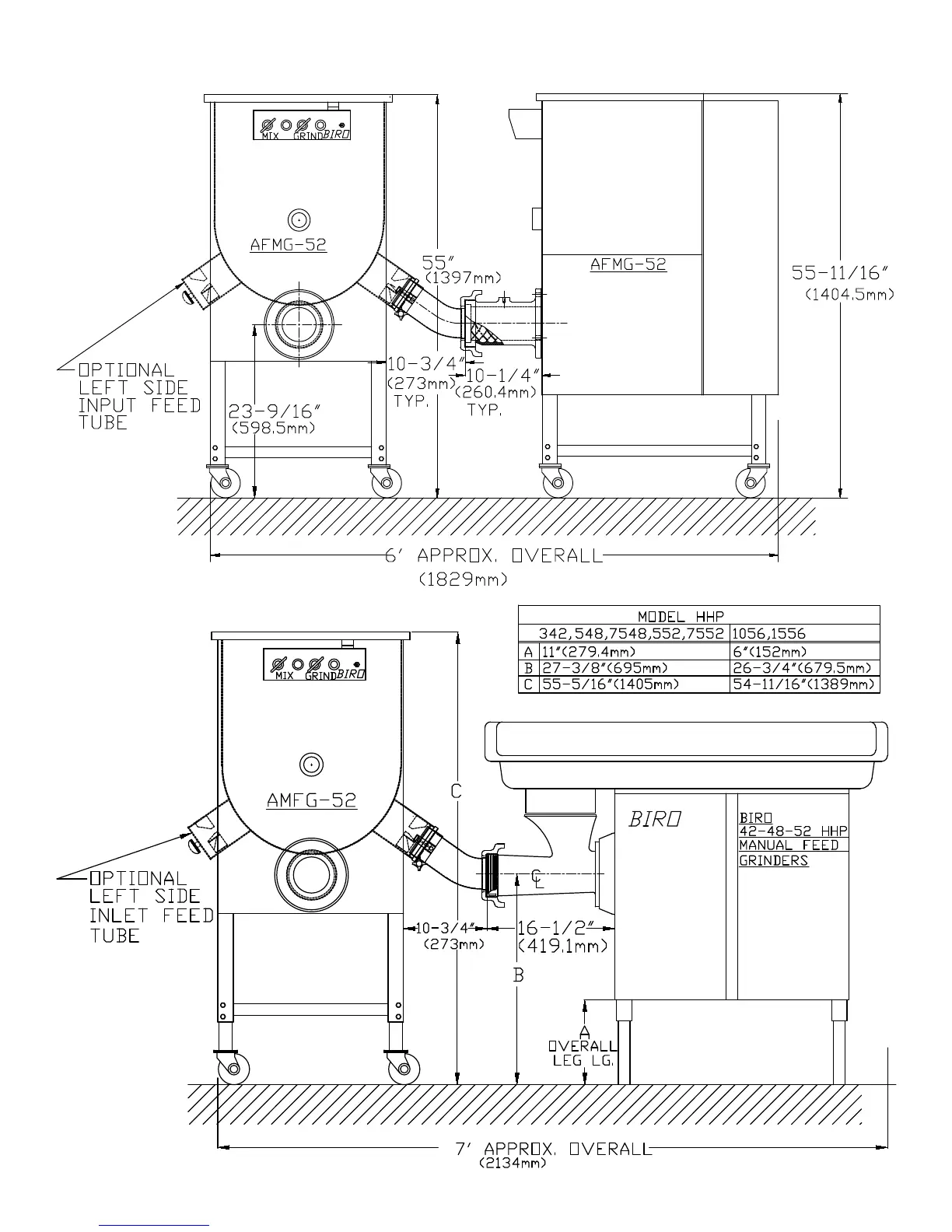
BIRO AFMG-52 - Safety Label Locations

BIRO AFMG-52
32 pages
Print Icon
To Next Page IconTo Next Page
To Next Page IconTo Next Page
To Previous Page IconTo Previous Page
To Previous Page IconTo Previous Page
Loading...
26
TANDEM OPERATION ILLUSTRATION FOR 35° INLET

Related product manuals