EasyManua.ls Logo

Bosch 560 DDC - Wiring Diagram; Typical FHP560 Wiring Diagram

Bosch 560 DDC
16 pages
Print Icon
To Next Page IconTo Next Page
To Next Page IconTo Next Page
To Previous Page IconTo Previous Page
To Previous Page IconTo Previous Page
Loading...
14 |
8733914716 DDC (2014/02) Subject to change without prior notice Quick Start Guide
Quick Start Guide
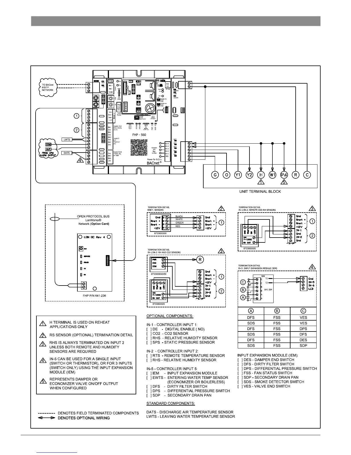
WIRING DIAGRAM
Typical FHP560 Wiring Diagram
Wiring Diagram

Related product manuals