EasyManua.ls Logo

Bosch Greensource TW035 - Dimensional Drawings

Bosch Greensource TW035
48 pages
Print Icon
To Next Page IconTo Next Page
To Next Page IconTo Next Page
To Previous Page IconTo Previous Page
To Previous Page IconTo Previous Page
Loading...
Greensource CDi Series TW Model
Greensource CDi Series TW Model8733954853 (2020/04)
41 | Dimensional Drawings
Subject to change without prior notice
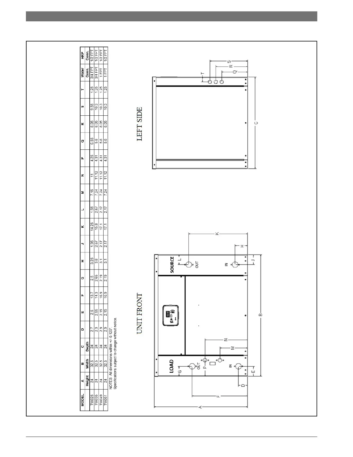
DIMENSIONAL DRAWINGS
Fig. 27 Dimensional Drawings

Related product manuals