EasyManua.ls Logo

Bosch SM024 - Page 66

Bosch SM024
100 pages
Print Icon
To Next Page IconTo Next Page
To Next Page IconTo Next Page
To Previous Page IconTo Previous Page
To Previous Page IconTo Previous Page
Loading...
SM Series Heat Pump
SM Series Heat Pump6 720 220 406 (2015/02) Subject to change without prior notice
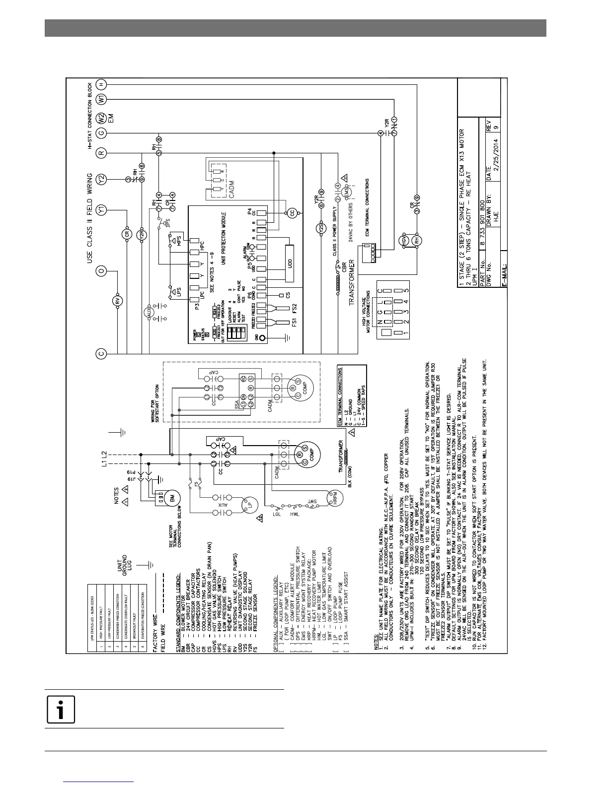
66 | Wiring Diagrams
Figure # 117
NOTE: FOR REFERENCE ONLY Actual unit wiring
may vary from this example. Always refer to the wiring
diagram attached to the unit.

Table of Contents

Other manuals for Bosch SM024

Related product manuals