EasyManua.ls Logo

Bosch SM024 - Dimensional Drawings for Unit Configurations; Horizontal (HZ) Unit Dimensions

Bosch SM024
100 pages
Print Icon
To Next Page IconTo Next Page
To Next Page IconTo Next Page
To Previous Page IconTo Previous Page
To Previous Page IconTo Previous Page
Loading...
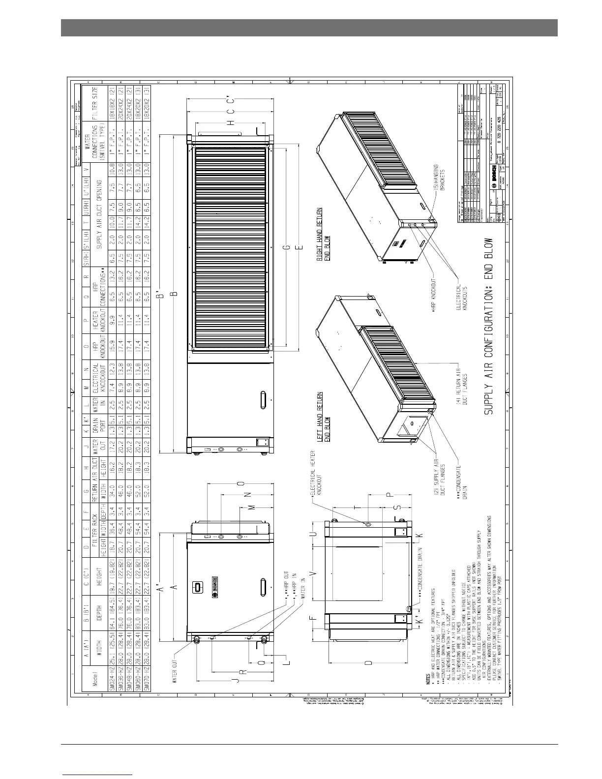
Dimensional Drawings | 95SM Series Heat Pump
6 720 220 406 (2015/02)Revised 02-15
DIMENSIONAL DRAWINGS
Figure # 140

Table of Contents

Other manuals for Bosch SM024

Related product manuals