EasyManua.ls Logo

Bosch SM024 - Wiring Harness Drawings

Bosch SM024
100 pages
Print Icon
To Next Page IconTo Next Page
To Next Page IconTo Next Page
To Previous Page IconTo Previous Page
To Previous Page IconTo Previous Page
Loading...
SM Series Heat Pump
SM Series Heat Pump6 720 220 406 (2015/02) Subject to change without prior notice
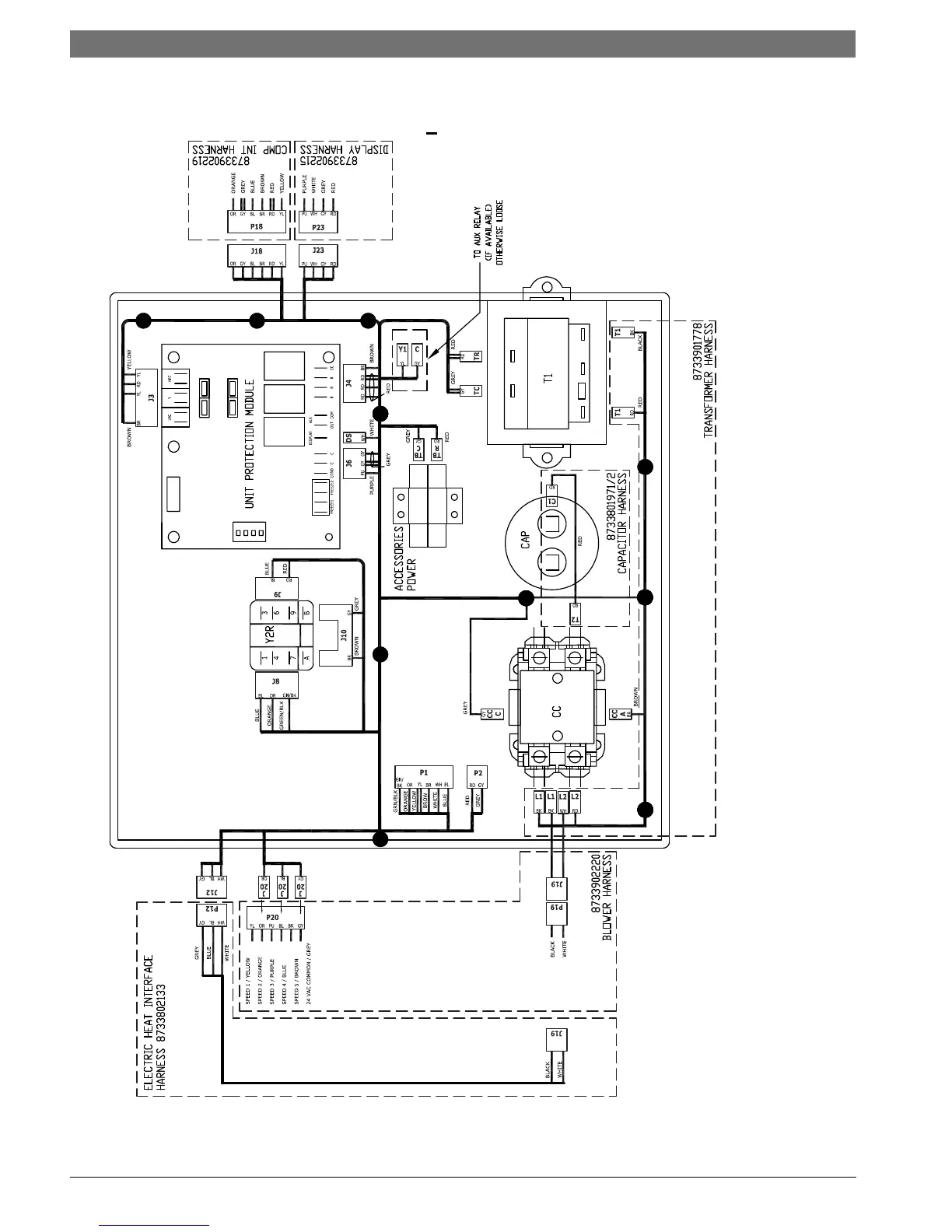
72 | WIRING HARNESS DRAWINGS
WIRING HARNESS DRAWINGS
Constant Torque Motor (SM0**-***-***-T*)
Figure # 123

Table of Contents

Other manuals for Bosch SM024

Related product manuals