EasyManua.ls Logo

Bpt IT/200 - Ligações

Bpt IT/200
Print Icon
To Next Page IconTo Next Page
To Next Page IconTo Next Page
To Previous Page IconTo Previous Page
To Previous Page IconTo Previous Page
Loading...
107
PORTUGUÊS
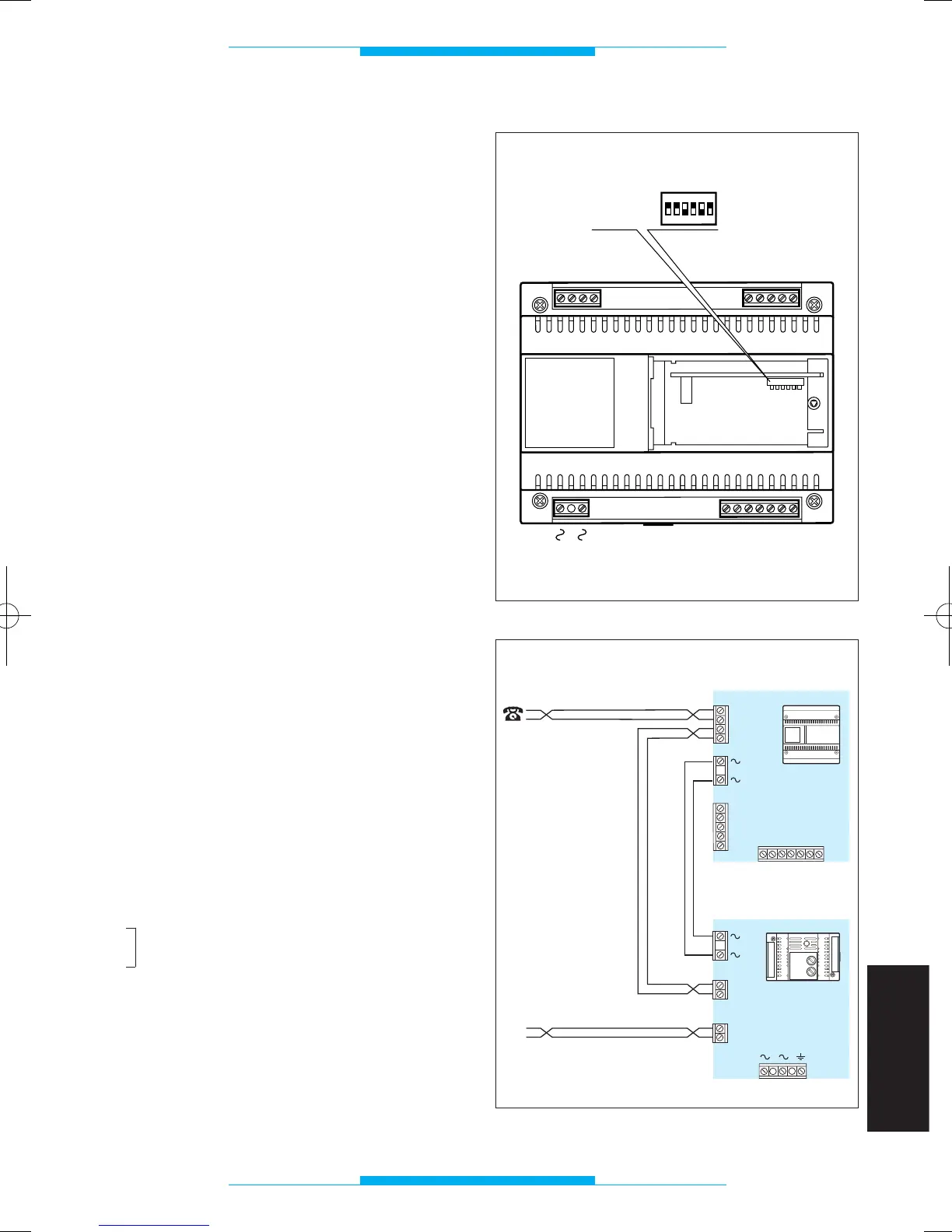
LIGAÇÕES
Para ter acesso a la placa de bornes tirar a
cobertura dos bornes. Se aconselha de uti-
lizar para a ligação dos telefones, cabo
telefónico de 6/10.
Distância máxima entre a interface telefóni-
ca e telefone: 100 m.
NOTA. O aparelho só deve ser ligado a
linhas telefónicas analógicas, não a linhas
digitais ISDN.
Função
dos bornes
Placa de bornes T (linha telefónica)
ae linha urbana
be linha urbana
au telefone
bu telefone
Placa de bornes C (do alimentador)
5 massa
6 entrada alimentação monitor
7 chamada
8 audio da placa botoneira
9 audio a la placa botoneira
12 chamada portaria
22 auxiliar/luz escadas
Placa de bornes M (ao derivado interno)
5 massa
6 saída alimentação monitor
7 chamada
8 audio da placa botoneira
9 audio a la placa botoneira
Placa de bornes A
~
rede
~
ATENÇÃO. RECOMENDA-SE DE PROTE-
GER A LINHA TELEFÓNICA E A ALIMEN-
TAÇÃO DE REDE DAS SOBRETENSÕES
COM O PROTECTOR DE LINHA LP/MT.
A
C
5
6
7
8
9
12
T
ae
be
au
bu
M
22
SW1
5
6
7
8
9
ON
OFF
ON
1
2
3
4
56
Fig. 2
IT/200
A
LP/MT
bu
au
F1
F2
M2
M3
M4
M1
TL
T
bu
au
be
ae
M
5
6
7
8
9
C
56789
12 22
be
ae
Fig. 3
IT200 24037311 02_09 24-02-2009 14:28 Pagina 107

Table of Contents

Other manuals for Bpt IT/200

Related product manuals