EasyManua.ls Logo

Bpt IT/200 - Connexions

Bpt IT/200
Print Icon
To Next Page IconTo Next Page
To Next Page IconTo Next Page
To Previous Page IconTo Previous Page
To Previous Page IconTo Previous Page
Loading...
67
FRANÇAIS
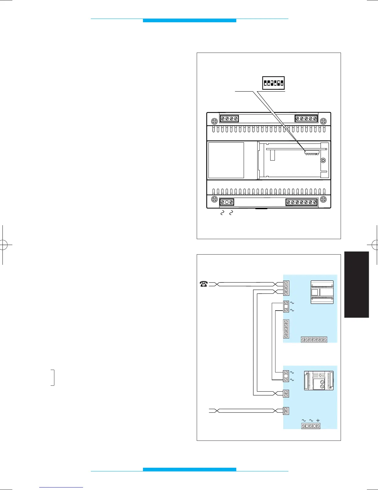
CONNEXIONS
Pour accéder aux borniers, enlever les cou-
vre-bornes. Pour la connexion des télépho-
nes, il est conseillé d’utiliser le câble de
6/10.
Distance maximale entre interface télépho-
nique et téléphone: 100 m.
NOTA. L’appareil ne doit être raccordé que
sur des lignes téléphoniques analogiques et
non pas sur des lignes digitales ISDN.
Fonction
des bornes
Bornier T (ligne téléphonique)
ae ligne urbaine
be ligne urbaine
au téléphone
bu téléphone
Bornier C (depuis alimentation)
5 masse
6 entrée alimentation moniteur
7 appel
8 audio depuis poste extérieur
9 audio au poste extérieur
12 appel conciergerie
22 auxiliaire/minuterie
Bornier M (au poste intérieur)
5 masse
6 sortie alimentation moniteur
7 appel
8 audio depuis poste extérieur
9 audio au poste extérieur
Bornier A
~
secteur
~
ATTENTION. NOUS VOUS CONSEIL-
LONS DE PROTÉGER LA LIGNE
TÉLÉPHONI-QUE ET L'ALIMENTATION
DU SECTEUR CONTRE LES SURTEN-
SIONS AU MOYEN DU PROTECTEUR DE
LIGNE LP/MT.
A
C
5
6
7
8
9
12
T
ae
be
au
bu
M
22
SW1
5
6
7
8
9
ON
OFF
ON
1
2
3
4
56
Fig. 2
IT/200
A
LP/MT
bu
au
F1
F2
M2
M3
M4
M1
TL
T
bu
au
be
ae
M
5
6
7
8
9
C
56789
12 22
be
ae
Fig. 3
IT200 24037311 02_09 24-02-2009 14:28 Pagina 67

Table of Contents

Other manuals for Bpt IT/200

Related product manuals