EasyManua.ls Logo

Bpt IT/200 - Conexiones

Bpt IT/200
Print Icon
To Next Page IconTo Next Page
To Next Page IconTo Next Page
To Previous Page IconTo Previous Page
To Previous Page IconTo Previous Page
Loading...
87
ESPAÑOL
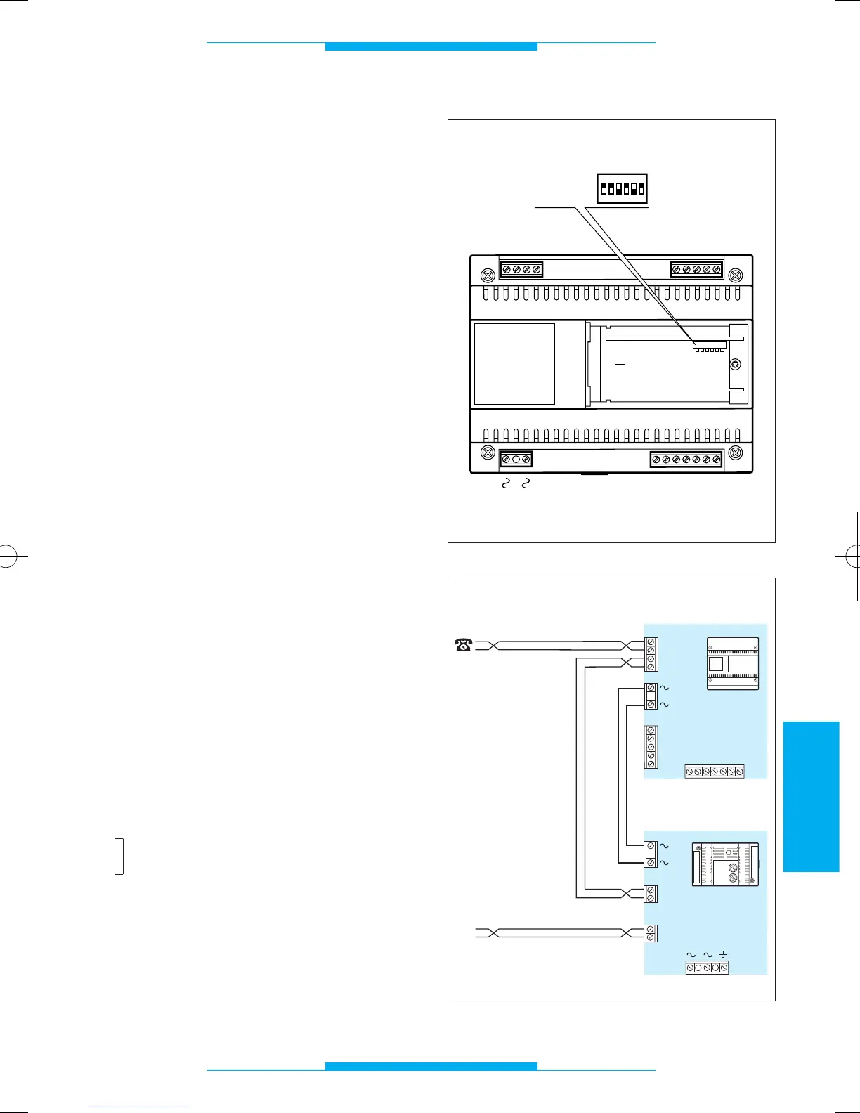
CONEXIONES
Para acceder a las borneras extraer las
tapas protectoras. Se aconseja utilizar
cable telefónico de 6/10 para realizar la
conexión de los teléfonos.
Distancia máxima entre interfaz telefónico y
teléfono: 100 m.
NOTA. El aparato debe conectarse sólo son
líneas telefónicas analógicas, no con líneas
digitales ISDN.
Función
de los bornes
Bornera T (línea telefónica)
ae línea urbana
be línea urbana
au teléfono
bu teléfono
Bornera C (del alimentador)
5 masa
6 entrada alimentación monitor
7 llamada
8 audio desde la placa exterior
9 audio hacia la placa exterior
12 llamada conserjería
22 auxiliar/luz escalera
Bornera M (en el derivado interno)
5 masa
6 salida alimentación monitor
7 llamada
8 audio desde la placa exterior
9 audio hacia la placa exterior
Bornera A
~
red
~
CUIDADO. SE RECOMIENDA PROTEGER
LA LÍNEA TELEFÓNICA Y LA
ALIMENTACIÓN DE RED DE SOBRECAR-
GAS DE TENSIÓN CON EL PROTECTOR
DE LÍNEA LP/MT.
A
C
5
6
7
8
9
12
T
ae
be
au
bu
M
22
SW1
5
6
7
8
9
ON
OFF
ON
1
2
3
4
56
Fig. 2
IT/200
A
LP/MT
bu
au
F1
F2
M2
M3
M4
M1
TL
T
bu
au
be
ae
M
5
6
7
8
9
C
56789
12 22
be
ae
Fig. 3
IT200 24037311 02_09 24-02-2009 14:28 Pagina 87

Table of Contents

Other manuals for Bpt IT/200

Related product manuals