EasyManua.ls Logo

Brother BAS-342G - 4-2. Installing the control box

Brother BAS-342G
84 pages
Print Icon
To Next Page IconTo Next Page
To Next Page IconTo Next Page
To Previous Page IconTo Previous Page
To Previous Page IconTo Previous Page
Loading...
4. INSTALLATION
5
BAS-342G
4-2. Installing the control box [2]
CAUTION
The control box is heavy, so installation should be carried out by two or more people.
In addition, take steps to make sure that the control box does not fall down.
If this is not done, injury to feet or damage to the control box may result.
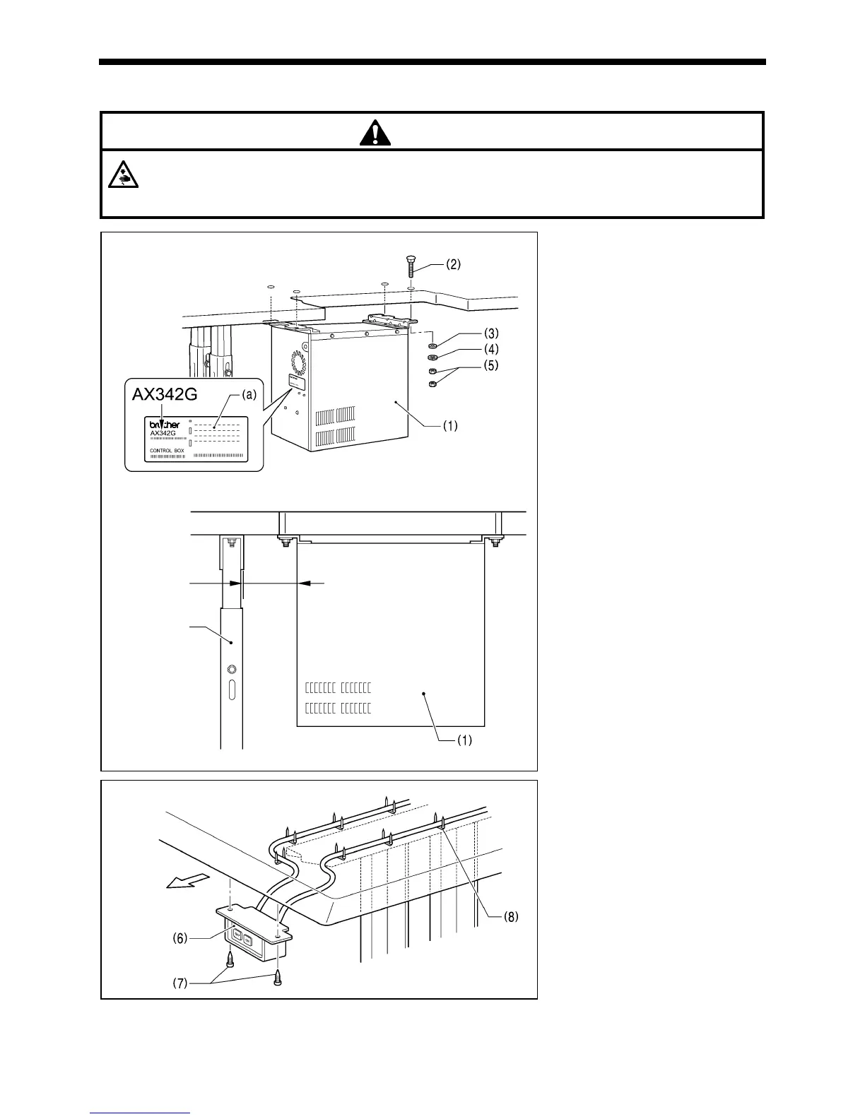
Before installing the control box (1), check
that the model plate (a) on the control box
(1) is “AX342G” to indicate that it is an
RX-control box for BAS-342G sewing
machines.
* If the sewing machine is installed to the
table, tilt back the machine head.
(Refer to "4-5. Tilting back and returning
the machine head".)
(1) Control box
(2) Bolts [4 pcs.]
(3) Plain washers [4 pcs.]
(4) Spring washers [4 pcs.]
(5) Nuts [8 pcs.]
NOTE:
Check that the control box (1) is at
least 10 mm away from the leg. If the
control box (1) and the leg are too
close together, it may result in
incorrect sewing machine operation.
(6) Power switch
(7) Wood screws [2 pcs.]
(8) Staples [7 pcs.]
NOTE:
Take care when tapping in the staples
(8) to make sure that they do not
pierce the power cord.
3962
M
3961
M
10mm or more
Leg
Operator
3963
M

Table of Contents

Other manuals for Brother BAS-342G

Related product manuals