EasyManua.ls Logo

BRP Evinrude E-Tec E200DPXSUF - Tilt-Down; Trim-In Mode

BRP Evinrude E-Tec E200DPXSUF
443 pages
Print Icon
To Next Page IconTo Next Page
To Next Page IconTo Next Page
To Previous Page IconTo Previous Page
To Previous Page IconTo Previous Page
Loading...
360
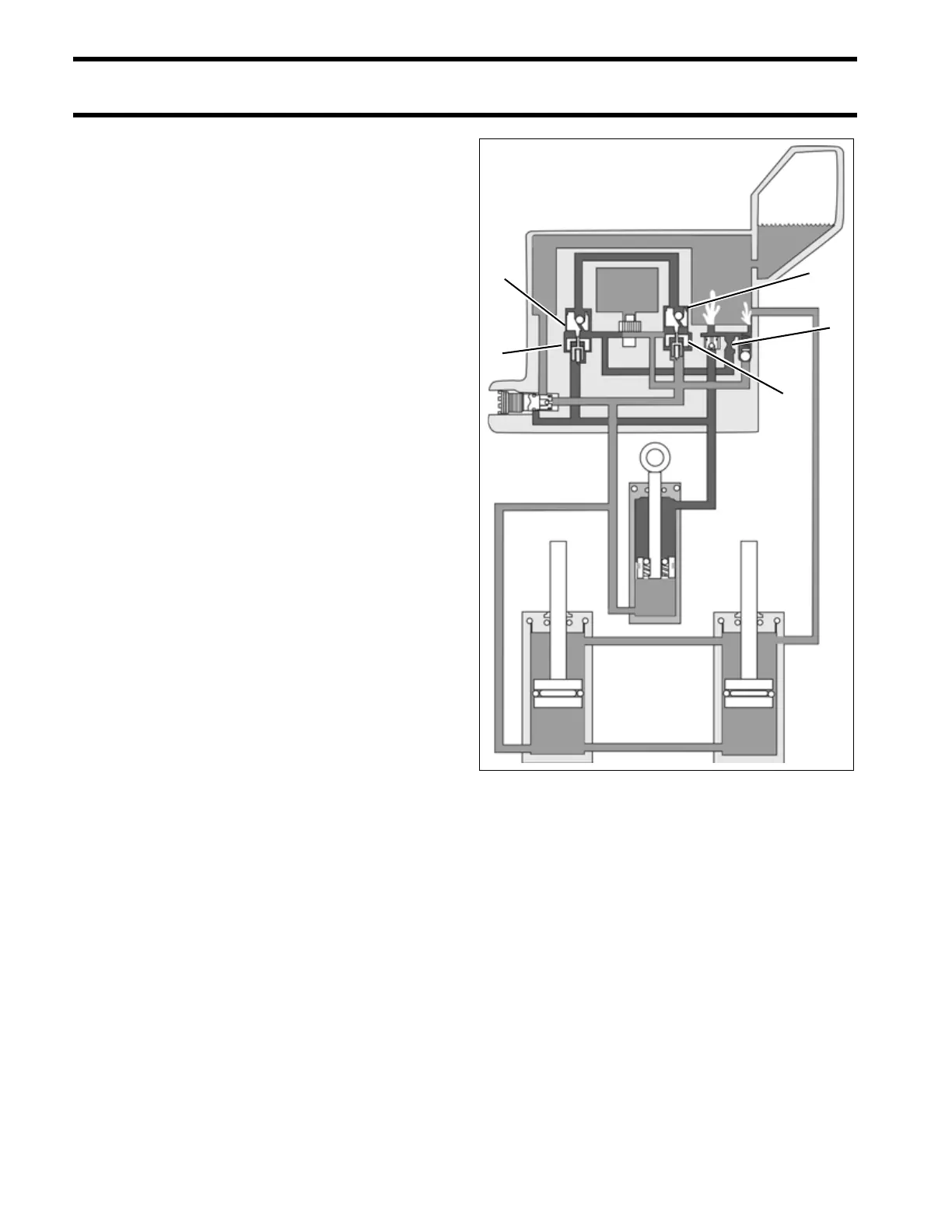
TRIM AND TILT
MODES OF OPERATION (THREE PISTON SYSTEM)
Tilt-DOWN / Trim-IN Mode
When the DOWN switch is pressed, the trim/tilt
motor rotates counterclockwise (as viewed from
pump end) and turns the pump gears.
Fluid pressure passes through the DOWN shuttle
valve to the UP shuttle valve, which mechani-
cally opens the UP check valve.
Fluid pressure pushes the DOWN check valve off
its seat and fluid passes through the valve to the
top of the tilt cylinder, moving the tilt piston
DOWN.
When the swivel bracket contacts the top of the
trim rods, the mechanical force of the tilt cylinder
pulling the outboard down also pushes the trim
pistons down. Fluid is pulled from the reservoir to
the top of the trim cylinders.
Fluid from the bottom of the cylinders returns
through the open UP check valve to the pump.
In the tilt range, all of the fluid from the bottom of
the tilt cylinder returns through the UP check
valve to the pump. Since more fluid is returning to
the pump than is required to fill the top of the cylin-
der, the excess fluid is vented through the DOWN
relief orifice to the reservoir.
In the trim range, fluid from the bottom of all the
cylinders is routed to the pump, which feeds only
the top of the tilt cylinder. All of the excess fluid
vents through the DOWN relief orifice to the res-
ervoir.
When all cylinders are completely retracted, all of
the pump output vents through the DOWN relief
orifice to the reservoir at stall pressure (approxi-
mately 800 psi (5516 kPa)).
1. Down shuttle valve
2. Up shuttle valve
3. Up check valve
4. Down check valve
5. Down relief orifice
DRC3463
1
2
3
4
5

Table of Contents

Related product manuals