EasyManua.ls Logo

Bryant 542J - Accessory Dimensions

Bryant 542J
122 pages
Print Icon
To Next Page IconTo Next Page
To Next Page IconTo Next Page
To Previous Page IconTo Previous Page
To Previous Page IconTo Previous Page
Loading...
73
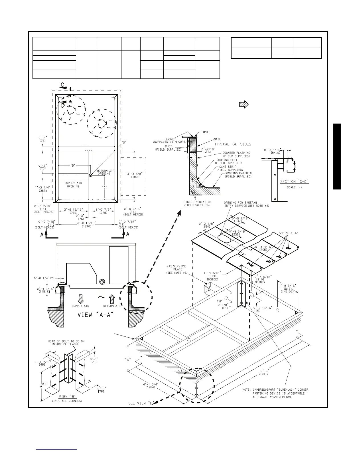
ACCESSORY DIMENSIONS (cont)
TO ENSURE AN AIRTIGHT CONNECTION,
PLACE UNIT ON CURB AS CLOSE TO
DUCT END AS POSSIBLE.
TO ENSURE AN AIRTIGHT CONNECTION,
PLACE UNIT ON CURB AS CLOSE TO
DUCT END AS POSSIBLE.
CONNECTOR
PKG. ACCY.
BC
D ALT
DRAIN
HOLE
GAS POWER CONTROL
CRBTMPWR001A00
2
-8
7
/
16
[827]
1
-10
15
/
16
[583]
1
3
/
4
[44.5]
3
/
4
[19] NPT
3
/
4
[19] NPT
1
/
2
[12.7] NPT
CRBTMPWR002A00
1
1
/
4
[31.7]
CRBTMPWR003A00
1
/
2
[12.7] NPT
3
/
4
[19] NPT
1
/
2
[12.7] NPT
CRBTMPWR004A00
3
/
4
[19] NPT
1
1
/
4
[31.7]
NOTES:
1. Roof curb accessory is shipped disassembled.
2. Insulated panels: 1-in. thick polyurethane foam,
1
3
/
4
lb density.
3. Dimensions in [ ] are in millimeters.
4. Roof curb: 16-gage steel.
5. Attach ductwork to curb (flanges of duct rest on
curb).
6. Service clearance 4 ft on each side.
7. Direction of airflow.
8. Connector packages CRBTMPWR001A00 and
2A00 are for thru-the-curb gas type. Packages
CRBTMPWR003A00 and 4A00 are for thru-
the-bottom type gas connections.
ROOF CURB
ACCESSORY
A UNIT SIZE
CRRFCURB003A00
1
-2
[356]
549B090,120
CRRFCURB004A00
2
-0
[610]
549B090,120
50TFQ004-012
549B036-120

Related product manuals