EasyManua.ls Logo

Bryant 542J - Accessory Dimensions

Bryant 542J
122 pages
Print Icon
To Next Page IconTo Next Page
To Next Page IconTo Next Page
To Previous Page IconTo Previous Page
To Previous Page IconTo Previous Page
Loading...
105
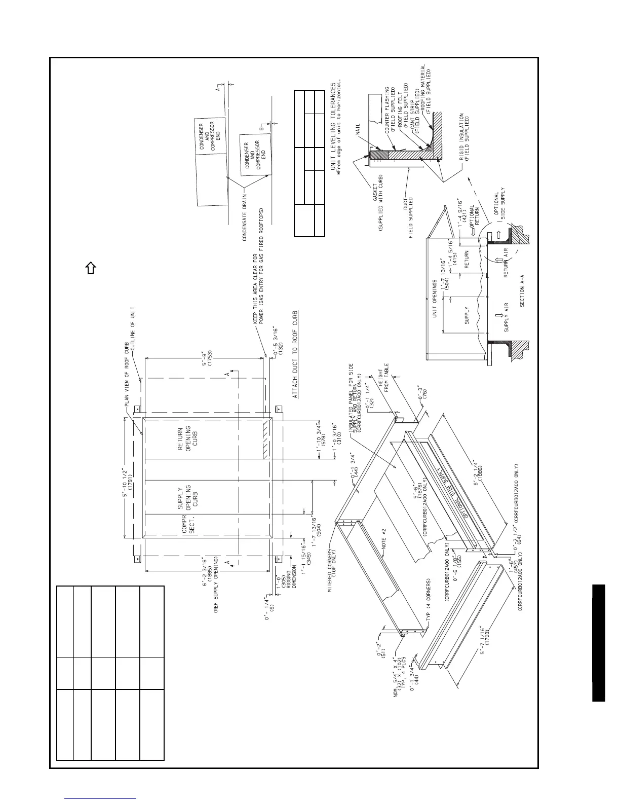
ACCESSORY DIMENSIONS
PKG NO. REF.
CURB
HEIGHT
DESCRIPTION
CRRFCURB010A00
1
-2
(305)
Standard Curb
14
High
CRRFCURB011A00
2
-0
(610)
Standard Curb for
Units Requiring
High Installation
CRRFCURB012A00
2
-0
(610)
Side Supply and
Return Curb for
High Installation
CRRFCURB013A00
2
-0
(610)
Horizontal Adapter
with High Static
Transition Duct
NOTES:
1. Roof curb accessory is shipped disassembled.
2. Insulated panels: 1
thick neoprene coated 1
1
/
2
lb density.
3. Dimensions in ( ) are in millimeters.
4. Direction of airflow.
5. Roof curb: 16 ga. (VA03-56) stl.
6. A 90 degree elbow must be installed on the supply ductwork
below the unit discharge for units equipped with electric
heaters.
NOTE:
To prevent the hazard of stagnant water build-up in the drain
pan of the indoor section, unit can only be pitched as shown.
DIMENSIONS* (degrees and inches)
UNIT
AB
Deg.in.Deg.in.
ALL .28 .45 .28 .43
542J150,180
50TFQ004-012
542J150,180

Related product manuals