EasyManua.ls Logo

Bunn ICB - Page 70

Bunn ICB
70 pages
Print Icon
To Previous Page IconTo Previous Page
To Previous Page IconTo Previous Page
Loading...
Page 70
37077 030405
-%-/29
"/!2$
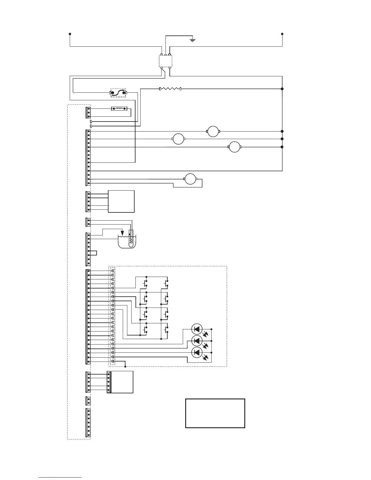
SCHEMATIC WIRING DIAGRAM iCBA, iCBB
!Ú"5../-!4)##/20/2!4)/.
",5
",5
,)-)4
4(%2-/34!4
2%$
2%$
7()2%$
7()6)/
7()2%$
2%$
2%$
2%&),,
$)30%.3%
*
*
*
*
*
*
*
*
#
/
.
4
2
/
,
0
#
"
/
!
2
$
#/-
./
6)/
",+
",+
",+
",+
7()'2.
7()'2.
7()",5
2%$
7()",5
&5..%,3%.3/2
200V AC 2 WIRE
230V AC 2 WIRE
SINGLE PHASE
",+
",+
2%$
7()
'2.
#/.42/,0!.%,!339
*

*
*
*
*
*
02/',
"2%7
!
02/'2
"2%7
#
34!4)#
3()%,$
*
*
*
",+
0.+
7()
'2.
,%6%,
02/"%
T
2%$
4!.+(%!4%2
7
*
"90!33
3/,
3/,
&5..%,,/#+
/PTIONAL
"2.",+
"2.7()
3/,
3/,
42!.3&/2-%2
6!
*
*
*
*
*
&5,,
&5,,
(!,&
(!,&
/./&&
/./&&
"2%7
"
NOT A PURCHASED SCHEMATIC
FOR REFERENCE ONLY
2%$
,
2%$
",+
",+
2%$
2%$
%-)
&),4%2
'2.9%,
",+
",+
,

Other manuals for Bunn ICB

Related product manuals