EasyManua.ls Logo

Burnham PVG - Internal Boiler Wiring Ladder Diagram

Burnham PVG
68 pages
Print Icon
To Next Page IconTo Next Page
To Next Page IconTo Next Page
To Previous Page IconTo Previous Page
To Previous Page IconTo Previous Page
Loading...
31
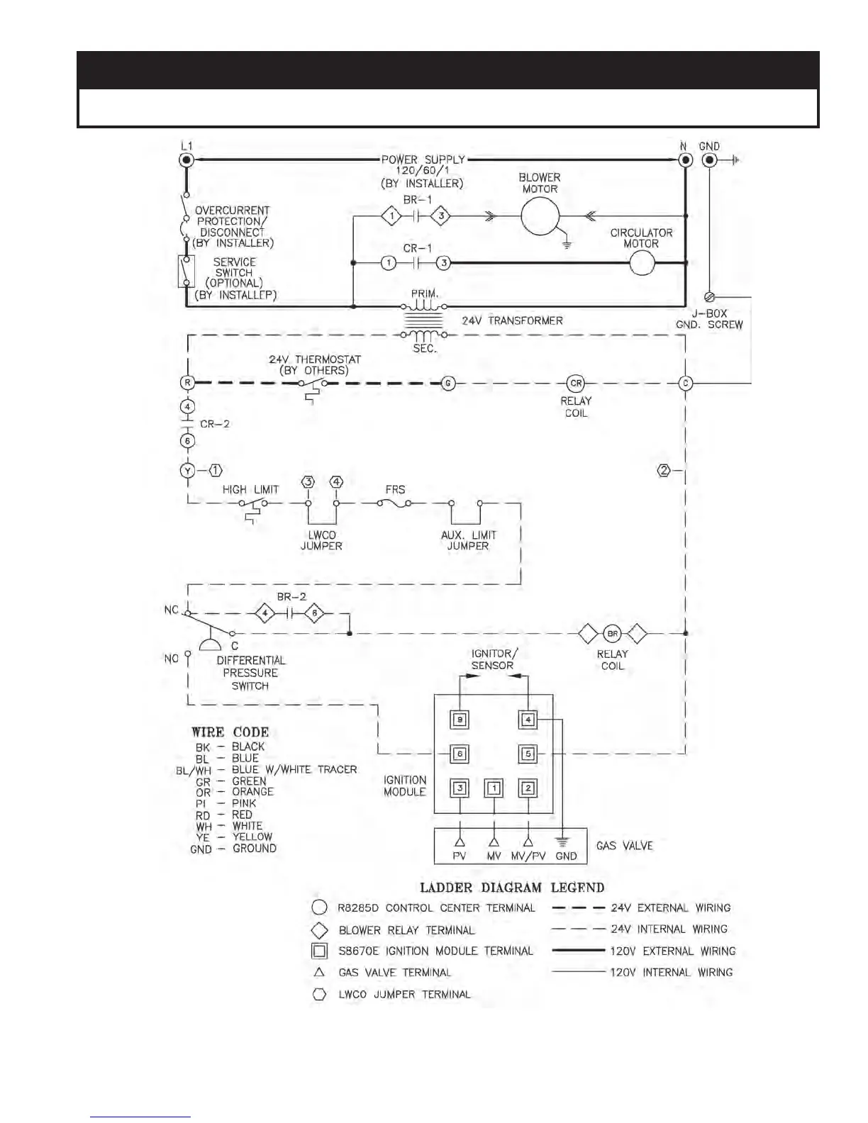
Figure 15: Internal Boiler Wiring Ladder Diagram
NOTICE
If an additional system limit is used, install in series with the auxiliary limit jumper shown in the drawing
below.

Table of Contents

Related product manuals