EasyManua.ls Logo

Burnham PVG - Dimensions

Burnham PVG
68 pages
Print Icon
To Next Page IconTo Next Page
To Next Page IconTo Next Page
To Previous Page IconTo Previous Page
To Previous Page IconTo Previous Page
Loading...
6
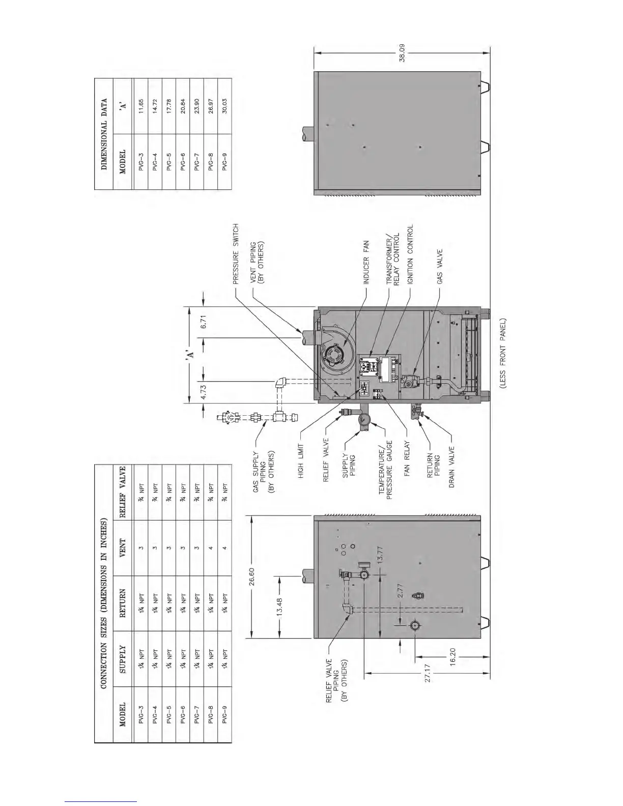
Figure 2: Dimensions

Table of Contents

Related product manuals