EasyManua.ls Logo

Burnham PVG - Flue and Burner Cleanout, 1 Burner

Burnham PVG
68 pages
Print Icon
To Next Page IconTo Next Page
To Next Page IconTo Next Page
To Previous Page IconTo Previous Page
To Previous Page IconTo Previous Page
Loading...
49
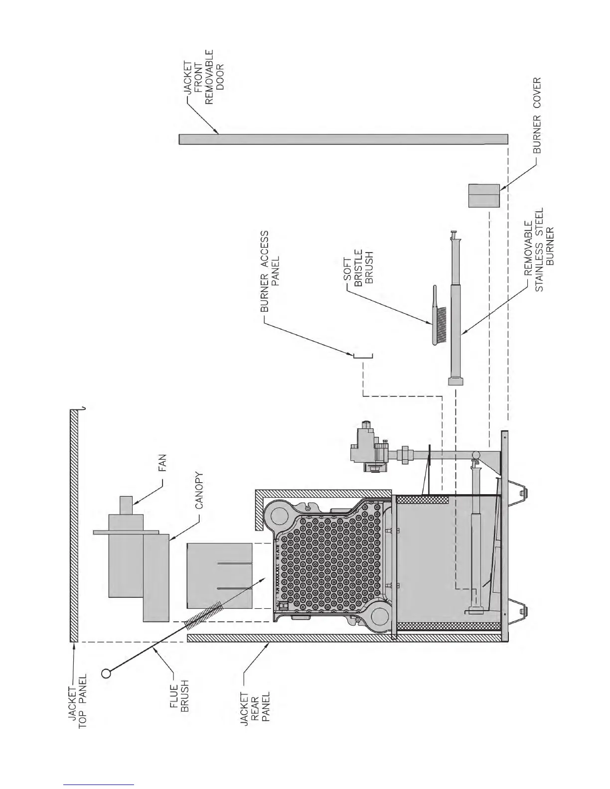
Figure 30: Flue and Burner Cleanout, 1” Burner

Table of Contents

Related product manuals