EasyManua.ls Logo

Calorex PPT8 - Page 108

Calorex PPT8
151 pages
Print Icon
To Next Page IconTo Next Page
To Next Page IconTo Next Page
To Previous Page IconTo Previous Page
To Previous Page IconTo Previous Page
Loading...
Seite 29
Calorex Heat Pumps Ltd. · The Causeway, Maldon, Essex CM9 4XD, UK
Installations- & Betriebsanleitung
PRO-PAC (PPT) 8/12/16/22 LX/LY
SLIMLINE
SD638150 ISSUE 11
®
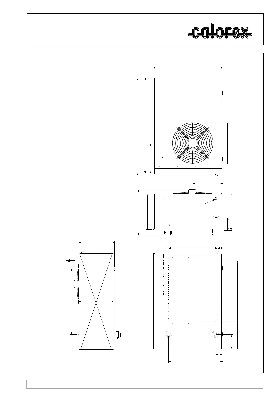
PPT22
WASSER EIN/AUS 1½" ODER 50mm STUTZEN
KONDENSAT ¾" ABFLUSS
LUFT AUS
LUFT AN
WASSER IN
WASSER AUS
390.50
528
394.75
1237
1263.50
904
97
707
188
364.25
789
70
641
470
844
KONDENSATOR
STEUERUNG
NETZ
ANSCHLUSS
457
490
165.50
600

Table of Contents

Other manuals for Calorex PPT8

Related product manuals