EasyManua.ls Logo

Calorex PPT8 - 11.1 Start up Procedure After Winterisation

Calorex PPT8
151 pages
Print Icon
To Next Page IconTo Next Page
To Next Page IconTo Next Page
To Previous Page IconTo Previous Page
To Previous Page IconTo Previous Page
Loading...
Page 28
Calorex Heat Pumps Ltd. · The Causeway, Maldon, Essex CM9 4XD, UK
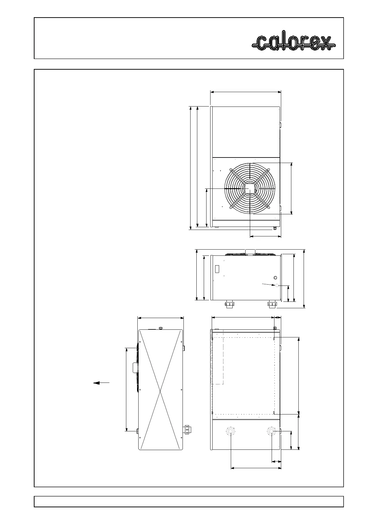
Installation Manual
PPT8/12/16/22LX/LY SLIMLINE
SD638150 ISSUE 11
®
PPT16 1 ½" or 50mm FEMALE
CONDENSATE ¾" DOMESTIC WASTE
1237
1264
725
528
320.50
395
AIR ON
AIR OFF
470
854
517
97
188
364.25 789
70
641
WATER OUT
WATER IN
CONDENSATE
MAINS IN
457
490
165.50
600
518.50
THERMOSTAT

Table of Contents

Other manuals for Calorex PPT8

Related product manuals