EasyManua.ls Logo

CAME BXL04AGS

CAME BXL04AGS
96 pages
Go to English
To Next Page IconTo Next Page
To Next Page IconTo Next Page
To Previous Page IconTo Previous Page
To Previous Page IconTo Previous Page
Loading...
A B 1 2 3P 7
10 TS
2
R800
OK
Pag. 17 - Manuale FA01085-IT - 02/2018 - © CAME S.p.A. - «istruzioni originali»
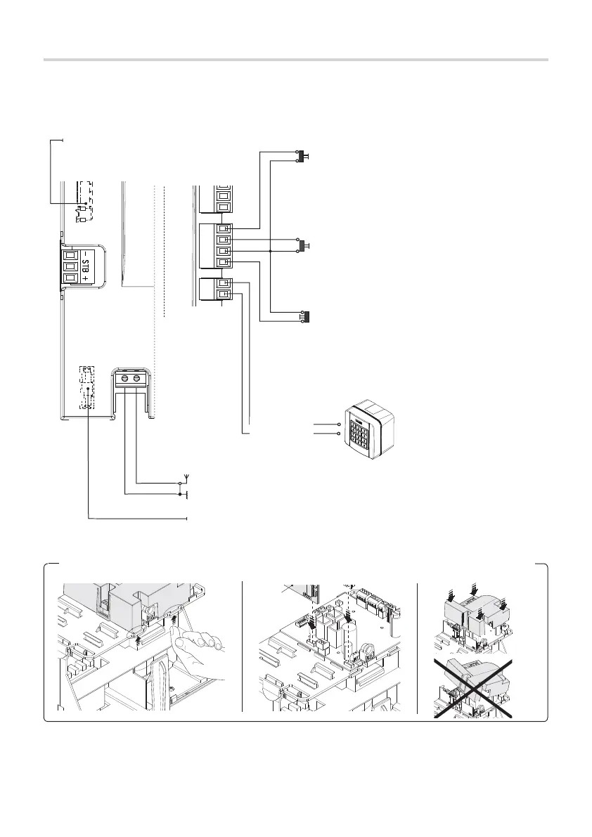
DISPOSITIVI DI COMANDO
ATTENZIONE! Prima di inserire una qualsiasi scheda a innesto (es.: AF, R800) è OBBLIGATORIO TOGLIERE
LA TENSIONE DI LINEA e, se presenti, scollegare le batterie.
Selettore a tastiera
Antenna con cavo RG58 per il comando a distanza
Funzione APERTURA PARZIALE da dispositivo di
comando (contatto NO).
Connettore per scheda AF (AF868 o AF43S) per il comando a distanza
Pulsante di STOP (contatto NC). Permette larresto
del cancello con l’esclusione della chiusura auto-
matica. Per riprendere il movimento premere il pul-
sante di comando o un altro dispositivo di comando.
Se non si utilizza, va disattivato in programma-
zione.
Funzione APRE-CHIUDE-INVERSIONE (passo-pas-
so) da dispositivo di comando (contatto NO). In
alternativa, dalla programmazione delle funzioni è
possibile attivare il comando APRE-STOP-CHIU-
DE-STOP.
Connettore per scheda R800 (la
scheda R800 serve per poter utilizzare
il selettore a tastiera)
Blu
Bianco
Per poter inserire le schede a innesto nei connettori dedicati, sollevare il coperchio della scheda.

Other manuals for CAME BXL04AGS

Related product manuals