EasyManua.ls Logo

CAN FO5000 - Installation Details; Installation Structure and Safety Distances

Default Icon
40 pages
Print Icon
To Next Page IconTo Next Page
To Next Page IconTo Next Page
To Previous Page IconTo Previous Page
To Previous Page IconTo Previous Page
Loading...
BUILT-IN GAS OVENS WITH GRILL ▪ FO Series
16
FO Series ed. 01/2020
INSTALLATION ON SUPPORT STRUCTURE
The equipment should be installed on a supporting structure, made of flame retardant and heat-
resistant material, which meets the sturdiness requirements set out in the industry's technical
standards (e.g. EN14749). The worktop must be fitted in a perfectly horizontal position and
perpendicular to all the surrounding vertical panelling. The area near the equipment may be very
hot, be careful and do not place in this space sockets, other household appliances, electrical wiring,
piping and any material that is heat sensitive or flammable.
CAUTION!
The equipment shall be placed in a space free of draughts or air blows which may
adversely affect combustion. The installation position chosen shall also prevent the
accumulation of unburned gases.
Please follow the dimensions indicated in this manual. Any deviation could cause an excessive
increase in temperature. Surfaces surrounding the device shall be able to withstand the temperature
increases permitted by EN30-1-1. All combustible materials, such as curtains, upholstery, shelves and
wooden accessories, must be kept away from the appliance.
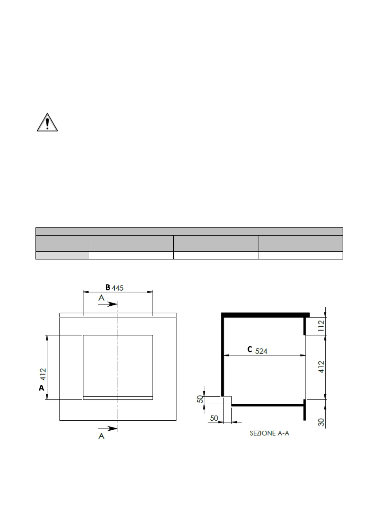
INSTALLATION SPACE AND SAFETY DISTANCE
A suitable recessed space must be provided in the supporting structure. For the size of the said space
and the installation place, see the following tables together with the graphs and any drawings in the
technical data sheets of each model in the first part of the present manual.
RECESSED HOLE MEASUREMENTS AND SAFETY DISTANCES
MODEL
A
mm
B
mm
C
mm
FO5000
412
445
524
A
B
C