EasyManua.ls Logo

CAN FO5000 - Equipment Positioning

Default Icon
40 pages
Print Icon
To Next Page IconTo Next Page
To Next Page IconTo Next Page
To Previous Page IconTo Previous Page
To Previous Page IconTo Previous Page
Loading...
BUILT-IN GAS OVENS WITH GRILL ▪ FO Series
17
FO Series ed. 01/2020
If the equipment will be installed on top of any other live appliance, it will be necessary to arrange a
suitable separation panel between the two devices.
Remember to arrange suitable holes in the furniture for the passage of the gas pipe and the electrical
supply of the equipment, if any.
WARNING!
The equipment must always be placed in a niche dedicated to it, without contacts or openings
towards surrounding closets and compartments.
POSITIONING THE EQUIPMENT
To place the equipment on the supporting structure, proceed as described:
STEP
ACTION
1
Bring the equipment close to the recessed hole and place it in the prepared place in the
cabinet.
2
Position the equipment by pushing it against the supporting structure and verifying that
the device rests firmly against the bottom of the recessed structure.
3
Attach the equipment to the furniture, inserting suitable side frames into the special holes
on the inner side, and secure with self-tapping screws
4 screws are required (two per side) it is suggested to use an electric screwdriver
CAUTION!
Strictly observe the dimensions of the recessed hole and the safety distances
indicated in this manual.
Before performing this type of installation, use all the necessary tools and the appropriate PPE.
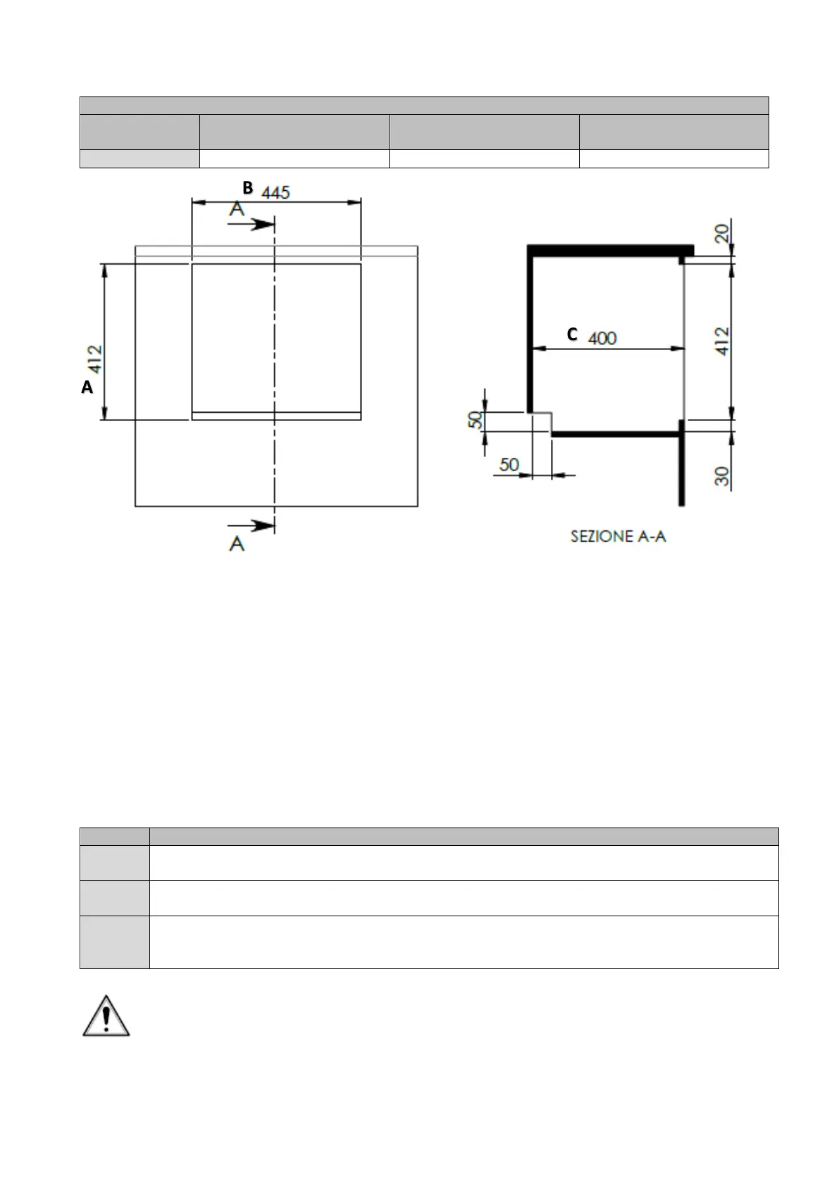
RECESSED HOLE MEASUREMENTS AND SAFETY DISTANCES
MODEL
A
mm
B
mm
C
mm
FO5000
412
445
400
A
B
C