EasyManua.ls Logo

Canon Multi Function Professional Puncher-B1 - Mfpp-B1; Обслуживание Пользователем

Canon Multi Function Professional Puncher-B1
128 pages
Print Icon
To Next Page IconTo Next Page
To Next Page IconTo Next Page
To Previous Page IconTo Previous Page
To Previous Page IconTo Previous Page
Loading...
104
RU
Multi Function Professional Puncher B1
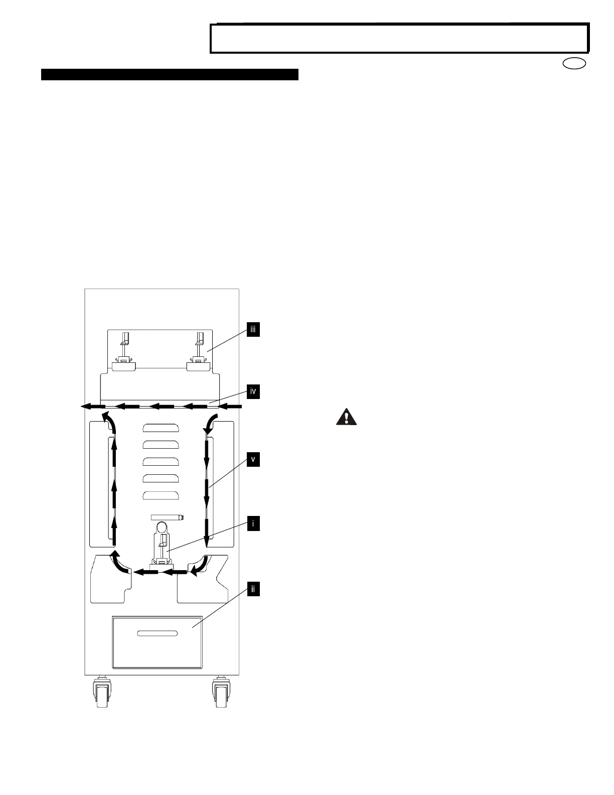
4. ОБСЛУЖИВАНИЕ ПОЛЬЗОВАТЕЛЕМ
i. Смена штампов:
Выполняется за считанные секунды без применения
инструментов.
ii. Контейнер для отходов:
Легко вынимется для быстрого удаления отходов перфорации.
iii. Хранилище штампов:
Вмещает до 2 запасных штампов.
iv. Обходной путь:
Короткий прямой путь для вывода бумаги без проведения.
v. Путь режима перфорации:
Большой радиус закругления поддерживает
бумагу
плотностью до 300g/m
2
(обложка).
Путь движения бумаги и обслуживаемые пользователем части
перфоратора MFPP-B1
A. Смена штампов:
Аппарат MFPP-B1 имеет набор сменных штампов, что позволяет
выполнять перфорацию документов под различные стили
переплета. Это удобно и экономично. Смена штампов
происходит быстро и легко, согласно следующими инструкциям:
Примечание: Подробные инструкции по установке штампов см.
Раздел 8 - Руководство по установке штампов.
Снятие штампов с устройства: Паз для сменных штампов
Профессионального перфоратора расположен над обходным
лотком устройства.
Шаг 1: Остановите принтер/копир.
Шаг 2: Откройте дверцу для обслуживания на MFPP-B1.
Шаг 3: Прочно взяться за фиксирующую рукоятку матрицы и
повернуть ее против часовой стрелки, как показано на
пиктограмме рядом с фиксирующей рукояткой. Таким образом
происходит освобождение матрицы из запертого положения.
Шаг 4: Полностью выдвиньте штамп из машины, удерживая его
обеими руками.
Шаг 5: Хранение снятого штампа производить надлежащим
образом в месте для хранения штампов (не допуская
попадания грязи и пыли, случайных падений с рабочих
поверхностей и т.д.).
Шаг 6: Выберите нужный штамп для следующего задания и
вставьте его в гнездо для штампа. Надавите на штамп, чтобы
ограничитель на штампе уперся в круглый магнит. Это важно
для обеспечения правильного положения штампа.
Шаг 7: Взяться за рукоятку и повернуть ее по часовой стрелке
до полного зацепления защелки, как показано на пиктограмме.
ОСТОРОЖНО: СУЩЕСТВУЕТ ОПАСНОСТЬ
ЗАЩЕМЛЕНИЯ. ПРИ УСТАНОВКЕ ШТАМПА В АППАРАТ
MFPP-B1 ВСЕГДА ДЕРЖИТЕ ПАЛЬЦЫ И ПРОЧИЕ ЧАСТИ
ТЕЛА ПОДАЛЬШЕ ОТ ГНЕЗДА ШТАМПА И ВСЕХ ЧАСТЕЙ
ШТАМПА, ЗА ИСКЛЮЧЕНИЕМ ОТВЕРСТИЯ ДЛЯ ПАЛЬЦА.
НЕСОБЛЮДЕНИЕ ЭТИХ МЕР ПРЕДОСТОРОЖНОСТИ
МОЖЕТ ПРИВЕСТИ К ТРАВМЕ.
Шаг 8: Закройте дверцу доступа.
Шаг 9: Включите режим перфорации и приступите к
выполнению задания на печать и перфорацию.
Обратите внимание, что при использовании нового штампа может
появляться масло на листах возле перфорации. После перфорации
25-50 листов штамп больше не будет пачкать листы маслом. После
установки нового или недавно смазанного штампа рекомендуется
провести короткую пробную печать.
B. Контейнер для отходов:
Сборник отходов перфорации на MFPP-B1 расположен спереди, в
нижней части машины. Контейнер следует периодически вынимать
и освобождать. В перфораторе MFPP-B1 имеется датчик
заполнения контейнера для отходов. При заполнении контейнера
на ЖК-дисплее машины а также в экране пользовательского
интерфейса принтера отображается сообщение “Контейнер
заполнен“(Chip Tray Full).

Table of Contents

Related product manuals