EasyManua.ls Logo

Canon Multi Function Professional Puncher-B1 - Operações Do Usuário

Canon Multi Function Professional Puncher-B1
128 pages
Print Icon
To Next Page IconTo Next Page
To Next Page IconTo Next Page
To Previous Page IconTo Previous Page
To Previous Page IconTo Previous Page
Loading...
90
PT
Multi Function Professional Puncher B1
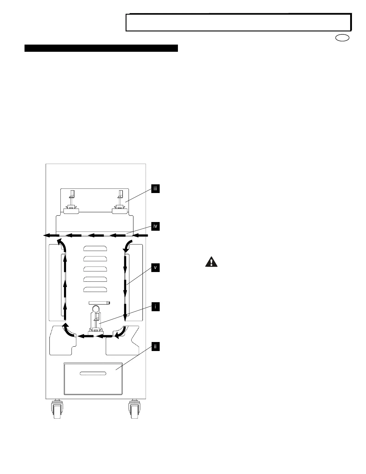
4. OPERAÇÕES DO USUÁRIO
i. Transferência dos conjuntos de moldes:
Estão concluídos (sem ferramentas) e sua execução leva
segundos.
ii. Reservatório de aparas perfuradas:
Bandeja de aparas de fácil acesso para o descarte rápido das
mesmas.
iii. Armazenamento dos Conjuntos de moldes:
É possível armazenar até 2 conjuntos de moldes para reposição.
iv. Passagem secundária da perfuração:
Percurso curto e direto de papel para documentos que não
precisam ser perfurados.
v. Percurso do molde de perfuração:
A ampla rotação do raio permite suportar uma cobertura de até 300
g/m
2
Fluxo de papel e seções interativas do usuário do MFPP-B1
A. Transferência dos conjuntos de moldes:
Com a conveniência para trocar os conjuntos de moldes
intercambiáveis, você poderá perfurar documentos de forma econômica
e com uma variedade de estilos padronizados. É fácil e rápido para você
trocar os conjuntos de moldes desta máquina, como está ilustrado nas
instruções a seguir:
Nota: Consulte a Seção 8 do Manual dos conjuntos de moldes do
usuário para obter informações sobre as instruções de configuração
avançada do conjuntos de moldes.
Remoção dos conjuntos de moldes da máquina: A abertura
permutável do conjunto de moldes do MFPP-B1 situa-se acima da seção
de desvio da máquina.
Passo 1: Pare a impressora/copiadora.
Passo 2: Abra o painel da porta de acesso do MFPP-B1.
Passo 3: Segure firmemente a trava de punção e gire-a na direção
CCW, conforme indicado no rótulo próximo à alavanca da trava do
molde. Desta forma, o molde será liberado da posição de bloqueio.
Passo 4: Deslize o conjunto de moldes até que ele seja totalmente
removido, apoiando-o com as mãos.
Passo
5: Armazene adequadamente o conjunto de moldes
removido na área de armazenamento do conjunto de moldes do
MFPP-B1 (mantenha-o longe de poeira, sujeira e evite quedas
acidentais das bordas de bancadas, etc.).
Passo 6: Selecione o conjunto de moldes desejado para a sua nova
tarefa e insira-o na abertura do conjunto de moldes. Empurre
firmemente o conjunto de moldes até que o dispositivo entre em
contato com o ímã circular. Este procedimento é crucial para
assegurar que a posição do conjunto de moldes seja a apropriada.
Passo 7: Segure a alavanca e gire-a no sentido CW até que a trava
esteja devidamente encaixada, conforme indicado no rótulo.
CUIDADO: PERIGO EMINENTE NO PONTO DE APERTO.
DURANTE A INSTALAÇÃO DOS SEUS CONJUNTOS DE
MOLDES, SEMPRE MANTENHA OS DEDOS E OUTRAS
PARTES DO SEU CORPO FORA DO ALCANCE DA
ENTRADA DA MÁQUINA E DE TODAS AS OUTRAS ÁREAS,
EXCETO O ORIFÍCIO PARA O DEDO DO CONJUNTO. SE
VO O SEGUIR ESTAS MEDIDAS DE PRECAUÇÃO,
PODERÁ CORRER O RISCO DE FERIMENTOS.
Passo 8: Feche o Painel da Porta de Acesso.
Passo 9: Continue executando o seu trabalho de impressão e
perfuração.
Por favor, observe que ao usar um molde novo, aparecerá óleo ao redor
dos orifícios perfurados da folha. Depois de perfurar de 25 a 50 folhas,
ele desaparecerá delas. Recomenda-se fazer um teste rápido de
impressão quando um novo molde for usado ou quando um molde for
lubrificado com óleo.
B. Recipiente de aparas perfuradas:
O recipiente de aparas perfuradas para o MFPP-B1 está localizado na
parte frontal da base da máquina. A gaveta deve ser aberta
periodicamente e esvaziada. O MFPP-B1 usa um sensor para
determinar quando o recipiente de perfuração está cheio e o visor LCD
mostra a mensagem Bandeja de aparas cheia. Outra mensagem
também aparecerá na tela da interface da impressora do usuário.

Table of Contents

Related product manuals