EasyManua.ls Logo

Canon Multi Function Professional Puncher-B1 - Bedieneraufgaben

Canon Multi Function Professional Puncher-B1
128 pages
Print Icon
To Next Page IconTo Next Page
To Next Page IconTo Next Page
To Previous Page IconTo Previous Page
To Previous Page IconTo Previous Page
Loading...
62
D
Multi Function Professional Puncher B1
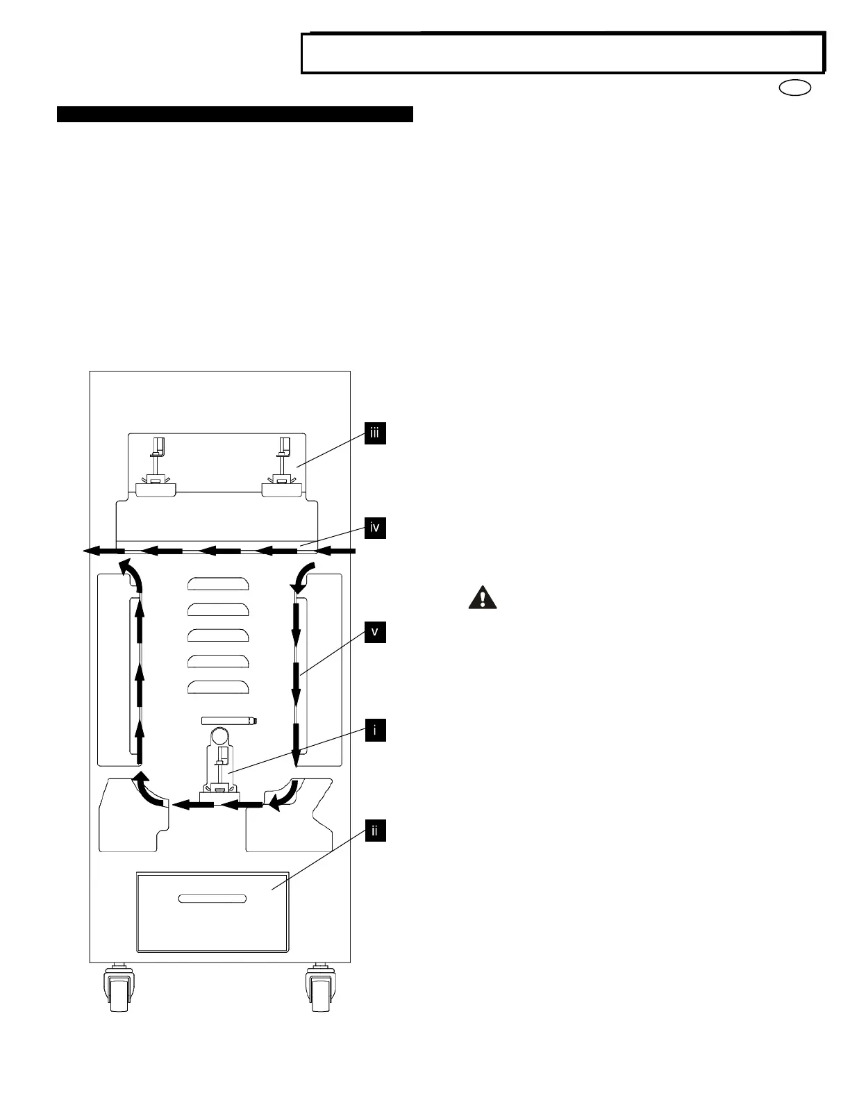
4. BEDIENERAUFGABEN
i. Auswechseln der Lochstempel:
Erfordert keine Werkzeuge und dauert nur wenige Sekunden
ii. Lochabfallbehälter:
Bequem zugänglicher Abfallbehälter zur schnellen Entsorgung der
Lochabfälle
iii. Aufbewahrung der Lochstempel:
Stauraum für bis zu zwei Lochstempel.
iv. Bypass:
Kurzer Papierweg für Dokumente, die nicht gelocht werden sollen
v. Papierweg für Lochmodus:
Großzügiger Radius in der Wendung, akzeptiert Pappen bis
300g/m
2
Papierführung und interaktive Bedienerbereiche des MFPP-B1
A. Auswechseln der Lochstempel:
Ihr MFPP-B1 verfügt über auswechselbare Lochstempel, damit Sie
Dokumente für viele verschiedene Bindearten wirtschaftlich lochen
können. Das Auswechseln der Lochstempel ist einfach und nimmt wenig
Zeit in Anspruch, wie die nachfolgende Anleitung zeigt:
Hinweis: Weiterführende Anweisungen zur Lochstempelkonfiguration
finden Sie im Abschnitt 8 des MFPP-B1 Lochstempel-
Benutzerhandbuchs.
Entnahme der Lochstempel aus der Maschine: Der Einschub für die
auswechselbaren Lochstempel des MFPP-B1 befindet sich über dem
Bypass-Abschnitt der Maschine.
Schritt 1: Drucker/Kopierer anhalten.
Schritt 2: Zugangstür des MFPP-B1 öffnen
Schritt 3: Greifen Sie sicher den Lochstempelverriegelungsgriff und
drehen Sie nach links, wie auf dem Etikett in der Nähe des
Lochstempelverriegelungsgriffs angegeben. Dadurch wird der
Lochstempel von der verriegelten Position gelöst.
Schritt 4: Den Lochstempel mit beiden Händen ganz herausziehen.
Schritt 5: Den entnommenen Lochstempel ordnungsgemäß in dem
für die Aufbewahrung der Lochstempel vorgesehenen Staufach des
MFPP-B1 ablegen (Schutz vor Staub, versehentlichem
Herunterfallen an Thekenkanten, usw.).
Schritt 6: Den gewünschten Lochstempel für den neuen
Arbeitsauftrag auswählen und in den Lochstempeleinschub
schieben. Den Lochstempel fest einschieben, bis der
Stempelanschlag am runden Magneten anliegt. Dies ist
entscheidend, um die ordnungsgemäße Ausrichtung des
Lochstempels zu gewährleisten.
Schritt 7: Den Griff greifen und nach rechts drehen bis der Riegel
voll einrastet, wie auf dem Etikett angegeben
VORSICHT: EINKLEMMGEFAHR. BEI DER MONTAGE
DÜRFEN FINGER UND ANDERE KÖRPERTEILE NICHT
MIT DER MONTAGERINNE UND ANDEREN BEREICHEN
DES LOCHSTEMPELS IN BERÜHRUNG KOMMEN,
AUSSER MIT DER FINGERÖFFNUNG AM LOCHSTEMPEL.
EIN NICHT-EINHALTEN DIESER
VORSICHTSMASSNAHMEN KANN ZU VERLETZUNGEN
FÜHREN.
Schritt 8: Zugangstür schließen.
Schritt 9: Fahren Sie mit Ihrem Druck- und Lochauftrag fort.
Beachten Sie, dass sich bei Verwendung eines neuen Stempels ein
wenig Öl auf dem Blatt um die gestanzten Löcher sammelt. Nach dem
Lochen von 25 bis 50 Blättern hinterlässt der Stempel kein Öl mehr auf
den Blättern. Es wird empfohlen einen kleinen Test-Druckauftrag
durchzuführen, wenn ein neuer Stempel oder ein frisch geölter Stempel
eingebaut wurde.
B. Lochabfallbehälter:
Der Lochabfallbehälter des MFPP-B1 befindet sich vorn im Sockel der
Maschine. Der Einschub sollte regelmäßig herausgezogen und geleert
werden. Der MFPP-B1 ist mit einem Sensor ausgestattet, der erkennt,
wenn der Lochabfallbehälter voll ist. Sobald der Lochabfallbehälter voll
ist, erscheint auf der LCD-Anzeige die Meldung „LO-ABF-B. VOLL“
(Lochabfallbehälter voll). Auf der Bedieneroberfläche des Druckers wird
ebenfalls eine entsprechende Meldung angezeigt.

Table of Contents

Related product manuals