EasyManua.ls Logo

Cardin EVO2000 - Page 6

Cardin EVO2000
Print Icon
To Next Page IconTo Next Page
To Next Page IconTo Next Page
To Previous Page IconTo Previous Page
To Previous Page IconTo Previous Page
Loading...
I
CARATTERISTICHE E DESCRIZIONE DELLE PARTI
Questo manuale è riferito al motoriduttore più potente fra quelli della serie EVO con motore monofase 230V.
Rispetto ai modelli con meno coppia si distingue per le dimensioni e il raffreddamento ad aria mentre le connessioni elettriche e la
programmazione sono unificate.
Descrizione delle parti (fig.A)
1. coperchio motore
2. sensori magnetici per finecorsa
3. protezione pignone
4. pignone
5. coperture laterali
6. grani di registro altezza motore
7. piastra fissaggio motore
8. viti fissaggio motore
9. serratura sblocco motore
(*) Peso massimo dell’anta in condizioni di scorrevolezza regolare ed equilibrata in apertura e chiusura.
NON si garantiscono questi limiti di impiego in presenza di ante: NON conformi, con componenti usurati e prive di
manutenzione.
10. leva sblocco motore
11. encoder
12. centrale elettronica
13. supporto centrale
14. condensatore motore
15. trasformatore di alimentazione
16. motore
17. staffe con magnete di finecorsa
VERIFICHE PRELIMINARI E AVVERTENZE IMPORTANTI SULL’INSTALLAZIONE
DATI TECNICI
Alimentazione di rete
Alimentazione motore
Corrente max. assorbita
Potenza max. assorbita
Grado di protezione
Rallentamento elettronico
Coppia nominale
Forza di spinta massima
Velocità max. cancello
Temperatura di funzionamento
Freno motore elettronico
Intermittenza lavoro
Peso
Lubrificante olio
230Vac
MOTORE U.M.
Vac 230
A
W
44
Si
Nm
IP
N
m/min
°C -20 +55
Si
EVO2000
4,3
1000
1400
50
10
60
12
Ts60
%
Kg
Condensatore motore µF 20
Peso max. cancello Kg 2000*
Encoder
Tensione alimentazione centrale Vac 230 ± 10%
Si
Finecorsa magnetici
Limitatore elettronico di coppia Si
Si
Centrale comando T101mod.
Prima di passare all' installazione si consiglia di verificare:
1. la solidità delle strutture esistenti (colonne, cerniere, ante) in relazione alle forze sviluppate dal motore.
2. che vi siano dei fermi meccanici di adeguata robustezza a fine apertura e fine chiusura delle ante.
3. l’assenza di attriti o laschi eccessivi nei sistemi ruote/rotaia inferiore e rulli/guida superiore.
4. sia stata esclusa l'eventuale serratura manuale.
5. lo stato di eventuali cavi elettrici già presenti nell'impianto.
5 6
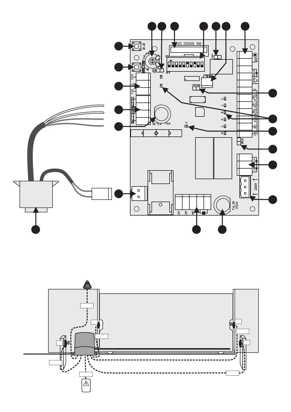
Fig. I
Fig. L
1
2
3
4
5
6
7
8
9
10
15
18
19
20
17
6
4
3
5
1
8 9
7
10
11
14
2122
12
13
P/P
PROG. STOP
2
16
2x1,50
Rx
Rx
Tx
4x0,50
2x0,50
2x0,50
Tx
4x0,50
3x1,50
230V

Related product manuals