EasyManua.ls Logo

Carel μPC - Schema Dei Collegamenti

Carel μPC
Print Icon
To Next Page IconTo Next Page
To Next Page IconTo Next Page
To Previous Page IconTo Previous Page
To Previous Page IconTo Previous Page
Loading...
12
+050001570 - 1.2 - 22.06.11
ITA
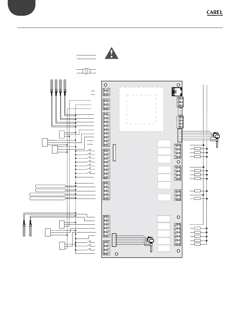
4.2 Schema dei collegamenti
Versione Medium
C4
NO8
NO9
NO10
NO11
NO12
RX-/TX-
RX+/TX+
GND
Vout
RX-/TX-
RX+/TX+
GND
C1
NO1
NO2
NO3
C2
NO4
NO5
NO6
NO7
C3
NC7
G
G0
G
G0
G
G0
B1
B2
B3
B4
B5
B6
B7
GND
+Vdc
+Vdc
GND
+5 Vref
GND
Y1
Y2
Y3
Y4
DI1
DI2
DI3
DI4
DI5
DI6
DI7
DIC1
B8
B9
B10
B11
B12
GND
ID8
ID9
ID10
IDC2
DO 1
DO 2
DO 3
J2 - probe supply
J3 - analog input
J4 - digital input
J5 - analog output
J18 - analog input
J17 - valve 2
J16 - digital input
J6
J7
J8
J9
J10
J11
J12 - group 1
J13 - group 1
J14 - group 2
J15 - group 3
DO 4
DO 5
DO 6
DO 7
DO 7
DO 8
DO 9
DO 10
DO 11
DO 12
L
L
N
L
N
L
N
N
M
OUT
+V
probe 5
(CAREL NTC,
0 to 1 Vdc,
4 to 20 mA)
probe 4 (CAREL NTC, 0 to 1 Vdc)
probe 3 (CAREL NTC, 0 to 1 Vdc)
probe 2 (CAREL NTC, 0 to 1 Vdc)
probe 1 (CAREL NTC, 0 to 1 Vdc)
probe 7
(CAREL NTC,
0 to 1 Vdc,
0 to 5 Vdc)
analog output 1 (0 to 10 Vdc)
analog output 2 (0 to 10 Vdc)
analog output 3 (0 to 10 Vdc, PWM)
analog output 4 (0 to 10 Vdc, PWM)
J1 - power supply
probe 6
(CAREL NTC,
0 to 1 Vdc,
0 to 5 Vdc)
M
OUT
+V
probe 10
(CAREL NTC,
0 to 1 Vdc,
4 to 20 mA)
probe 12
(CAREL NTC,
0 to 1 Vdc,
0 to 5 Vdc)
probe 11
(CAREL NTC,
0 to 1 Vdc,
0 to 5 Vdc)
probe 9 (CAREL
NTC, 0 to 1 Vdc)
probe 8 (CAREL
NTC, 0 to 1 Vdc)
(*)
(*)
M
OUT
+5V ref
OUT
+5V ref
M
OUT
+5V ref
M
OUT
+5V ref
M
se modello a 230 Vac
ATTENZIONE AL TIPO
DI ALIMENTAZIONE!
se modello a 24 Vac
Fig. 4.b

Related product manuals