EasyManua.ls Logo

Carel uChiller UCHBP00000200

Carel uChiller UCHBP00000200
108 pages
To Next Page IconTo Next Page
To Next Page IconTo Next Page
To Previous Page IconTo Previous Page
To Previous Page IconTo Previous Page
Loading...
30
ENG
µchiller +0300053EN rel. 2.2 - 14.12.2021
Installation
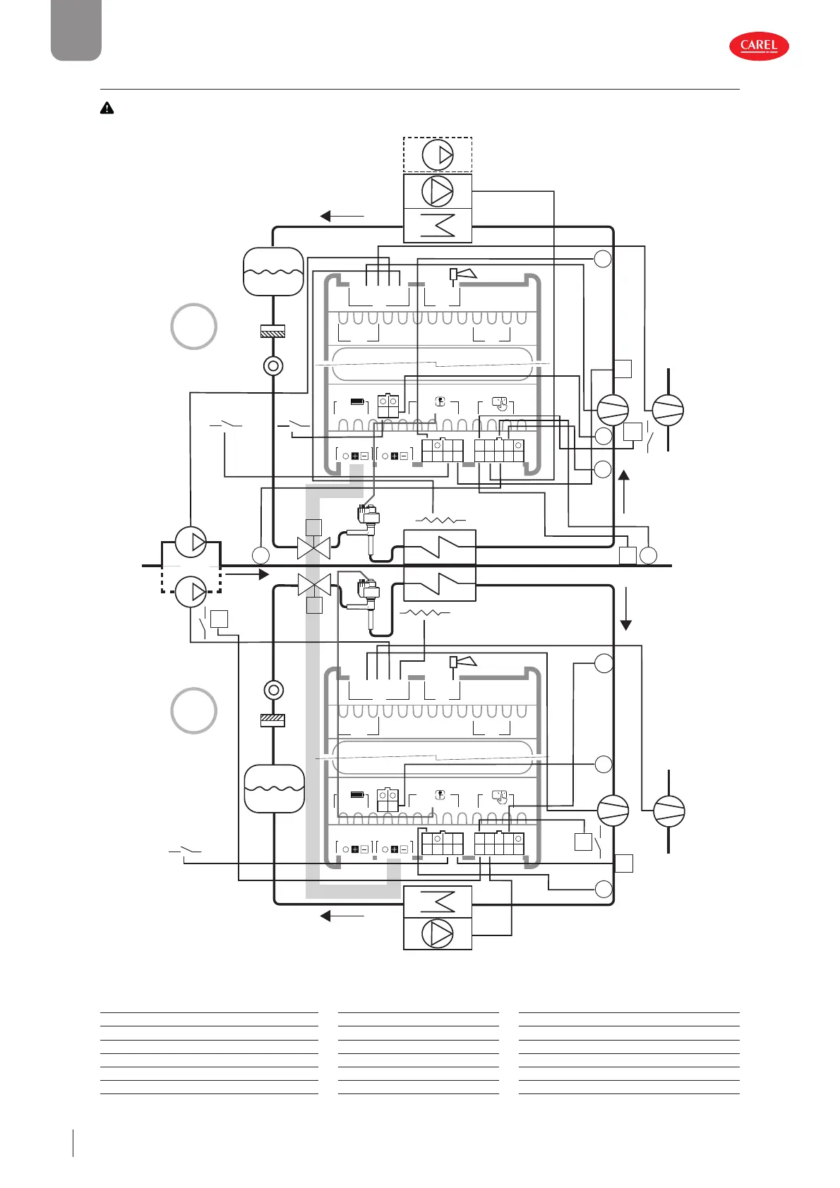
2.13.5 Chillers, On/O compressors and unipolar ExV expansion valve
Important:
The black lines refer to the electrical connections, the grey lines the serial connections between controller
and options (I/O expansion for the second circuit, EVD EVO and Power+).
J4 BMS
J3
J2
J5 FBus
S1 S3 5V
S2Y2
Y1ID1
ID2
ID3ID5
ID4S4
S6 +V
VL
S5
J1
J7
G0 G
J6
C
C
NO1
NO2
NO3
NO4
NO5
J8J10
J14
J9
J11
C
NO6
J4 BMS
J3
J2
J5 FBus
S1 S3 5V
S2Y2
Y1ID1
ID2
ID3ID5
ID4S4
S6 +V
VL
S5
J1
J7
G0 G
J6
C
C
NO1
NO2
NO3
NO4
NO5
J8J10
J14
J9
J11
C
NO6
300053_143_R03
C1
E1
L1
F1
SL1
V1_C1
V1_C2
CP1
P
T
CP2
R
C2
E2
SL2
L2
CP1 CP2
P
P
P
R
T
P
AL
AL
AL1_C2
AL1_C1
P
PU2
PU1
TT
FL
F2
T
1
2
V2_C2 V2_C1
Circuit 1
Circuit 2
2_Set
T
T
S7
ID6
S7
ID6
Fig. 2.z
Ref. Description Ref. Description Ref. Description
C1/C2 Condenser 1/2 SL1/2 Liquid sightglass 1/2 R1/2 Frost protection heater
E1/E2 Evaporator 1/2 F1/2 Filter-drier 1/2 P Pressure probe/pressure switch
V1_C1 Solenoid valve circuit 1 FL Flow switch T Temperature probe/thermostat
V1_C2 Solenoid valve circuit 2 PU1/2 User pump 1/2 CP1/2 Compressor 1/2
V2_C1 Electronic expansion valve circuit 1 L1/2 Liquid receiver 1/2 AL Alarm
V2_C2 Electronic expansion valve circuit 2 2_Set 2nd set point AL1_C1/2 Remote alarm circuit 1/2
Tab. 2.az

Related product manuals