EasyManua.ls Logo

Carel uChiller UCHBP00000200

Carel uChiller UCHBP00000200
108 pages
To Next Page IconTo Next Page
To Next Page IconTo Next Page
To Previous Page IconTo Previous Page
To Previous Page IconTo Previous Page
Loading...
71
ENG
µchiller +0300053EN rel. 2.2 - 14.12.2021
Functions
300053_141_R01
E
L
F
S
CP
T
PU
M
T1
T2
M
T3
C
FC_E
FC_V
V
V1
Ref. Description
FC_E Free cooling heat exchanger
C Condenser
E Evaporator
F Filter-drier
L Liquid receiver
CP Compressor
S Liquid sightglass
FC_V Free cooling valve
PU User pump
T1 User return probe
T2 User delivery probe
T3 Outside temperature probe
V1 Thermostatic expansion valve
V Solenoid valve
Fig. 5.v
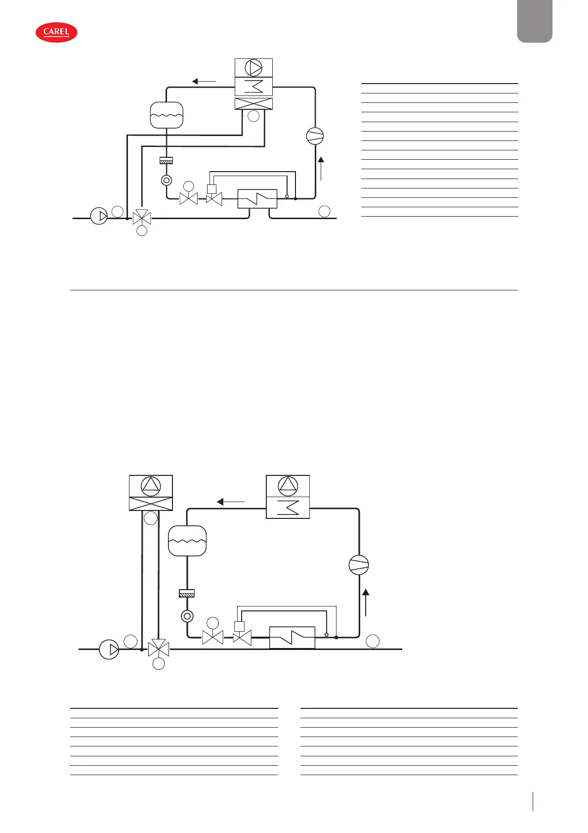
5.15.2 Air-cooled condensing unit with separate air circuit
Free cooling is enabled based on the comparison between the user return water temperature and the outside air temperature;
this directly controls switching of the three-way valve, which allows the water returning from the user terminals to fl ow through
the free cooling coil before entering the evaporator. Free cooling capacity is controlled by modulating the specifi c fan speed; in
combined operation (free cooling + mechanical cooling), free cooling fan speed is always 100%.
Inputs used:
To enable free cooling:
User return temperature;
Outside air temperature;
To manage capacity in free cooling mode:
(according to the control probe used) Return/delivery water temp.
Outputs used:
0-10 V to manage the condenser fan (Y1: Circuit 1 and Circuit 2)
0-10 V to manage the free cooling fan (Y2: Circuit 1);
Free cooling valve On-Off control.
300053_141_R01
E
L
F
S
CP
T
PU
M
T1
T2
M
T3
C
FC_E
FC_V
VV1
Fig. 5.w
Ref. Description Ref. Description
FC_E Free cooling heat exchanger FC_V Free cooling valve
C Condenser PU User pump
E Evaporator T1 User return probe
F Filter-drier T2 User delivery probe
L Liquid receiver T3 Outside temperature probe
CP Compressor V1 Thermostatic expansion valve
S Liquid sightglass V Solenoid valve

Related product manuals